Thomas Mannsingel 109
Vraagprijs: € 900.000 k.k.

Kenmerken
| Adres: | Thomas Mannsingel 109 2553 DA Den Haag |
| Wijk: | Vroondaal |
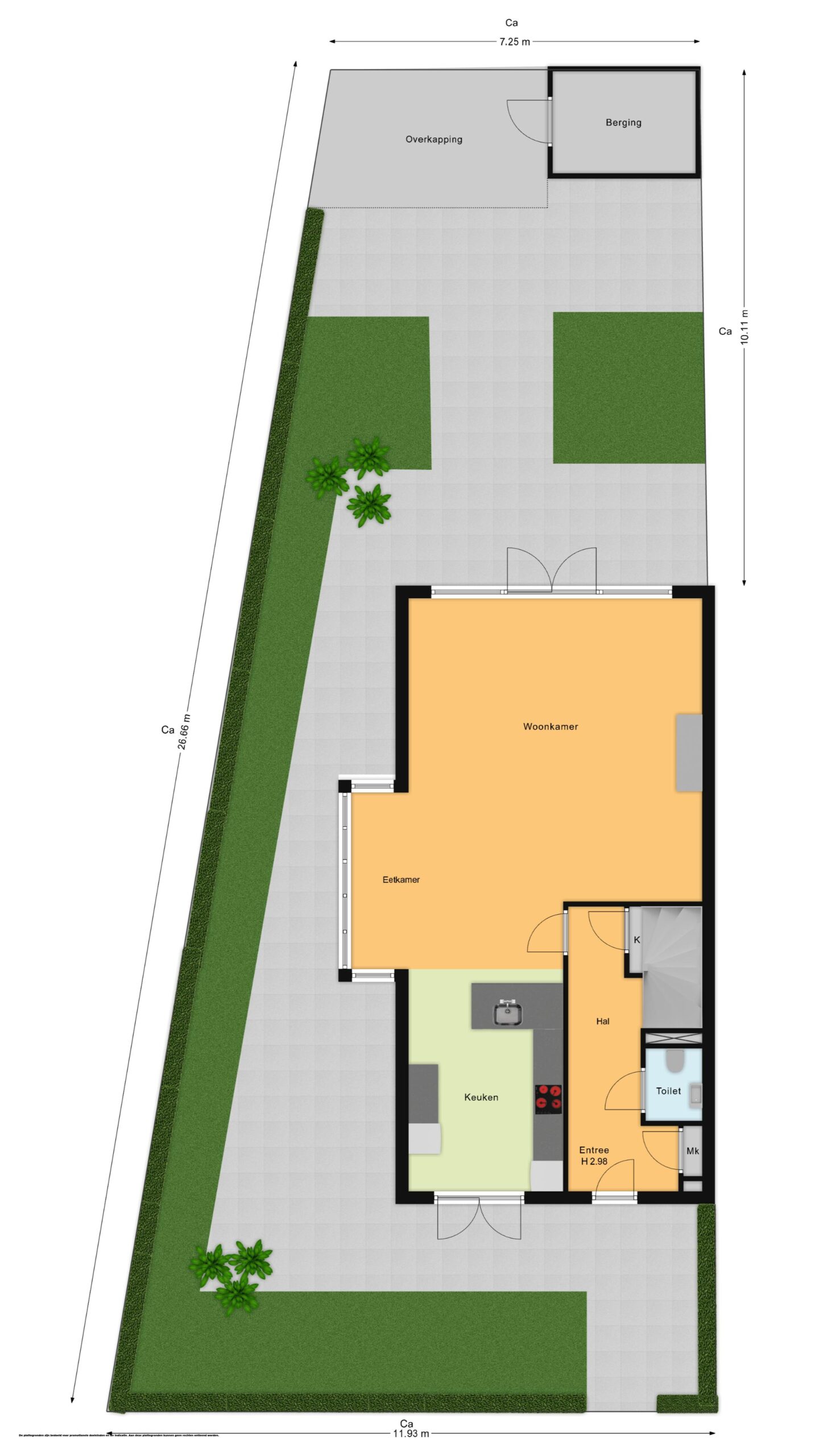
| Perceel m2: | 258 |
| Woonoppervlakte m2: | 175 |
| Aantal kamers: | 5 |
| Aantal slaapkamers: | 4 |
| Aantal badkamers: | 1 |
| Bouwjaar: | 2018 |
| Status: | Verkocht |
Beschrijving
Sfeervolle en lichte hoekwoning met allure in de geliefde wijk Vroondaal.In de mooiste buitenwijk van Den Haag, het geliefde Vroondaal, staat deze riante hoekwoning op een royaal perceel met een zonnige voor-, zij- en achtertuin. De architectuur is geïnspireerd op het klassieke Statenkwartier en combineert dat met het comfort en de luxe van nu, een huis met karakter en modern woonplezier.
De woning ligt aan een brede groenstrook, ideaal voor gezinnen met jonge kinderen en heerlijk rustig voor wie privacy zoekt.
Zodra je binnenstapt, voel je de bijzondere sfeer van dit huis. Dankzij de uitbouw van circa 2,40 meter en de plafondhoogte van bijna 3 meter op de begane grond ademt de leefruimte ruimte en licht. De gezellige haard vormt het warme hart van de woonkamer, waar de erker zorgt voor een prachtige lichtinval.
De moderne, volledig uitgeruste keuken is voorzien van hoogwaardige inbouwapparatuur en biedt alle ruimte voor dagelijks gemak en gezellige diners met vrienden of familie. Op de verdiepingen vind je vier ruime slaapkamers en een complete badkamer, ideaal voor gezinnen die comfort en privacy waarderen.
De groene aangelegde achtertuin ligt op het noordwesten, maar dankzij de ligging rondom de woning geniet je de hele dag van de zon. Onder de stijlvolle overkapping met heater is het heerlijk vertoeven, van het vroege voorjaar tot in de nazomer. De tuin beschikt bovendien over een praktische berging en een handige achterom.
Voor deze woning een perceel van ca. 258m2 en een woonoppervlak van ca. 175m2.
Eigen grond. Energiezuinig met 8 zonnepanelen en energielabel A.
Ideaal gelegen met verrassend veel groen in de omgeving waardoor een parkachtige uitstraling in natuur- en recreatiegebied Madestein, oude Landgoed Ockenburgh en veel sportverenigingen zoals voetbal, hockey, zwembad De Boetzelaer, Martial Arts en niet te vergeten De Uithof met een ruime keuze uit (sport-) activiteiten met een ski-, schaats- en padelcentrum. Een gunstige ligging t.o.v. winkelcentra Houtwijk en Loosduinen maar ook Poeldijk is goed bereikbaar. Verder uitvalswegen A4) en scholen waaronder internationale school Kijkduin en aan de rand van de wijk Kindcentrum Vroondaal met een basisschool en kinderopvang.
Daarnaast kleinschalig winkelaanbod waaronder een Albert Heijn, bakker Segaar, apotheek en een praktijk voor een huisarts.
De boulevard, duinen en het strand van Kijkduin zijn op zo’n 10 fietsminuten gelegen met gezellige horeca en breed strand maar ook de Zandmotor met watersportmogelijkheden zoals wingfoilen, kite-, golf- en windsurfen.
Indeling:
Via de verzorgde voortuin betreedt u de woning. In de hal bevinden zich de meterkast (uitgerust met 8 groepen), het moderne toilet met hangcloset, inbouwreservoir en fonteintje en een praktische trapkast met ruimte voor garderobe en berging.
De royale living ademt stijl en comfort, met een gestuct plafond, warme eiken parketvloer en een prachtige erker die zorgt voor overvloedig daglicht. De erker creëert bovendien een mooie plek voor de eettafel, die ook uitstekend kan dienen als werkplek aan huis. Aan de achterzijde zorgen de grote glaspartijen in de pui voor een prachtig zicht op de tuin. Ook in de winter geen gebrek aan licht. Via de dubbele openslaande deuren loopt u zo de fraai aangelegde achtertuin in. Hier geniet u van de zon, rust en privacy. De tuin is voorzien van een ruim terras, een gezellige overkapping, een berging en een achterom, alles wat u zich kunt wensen voor ontspannen buitenleven.
Aan de voorzijde bevindt zich de ruime hoekkeuken met ontbijtbar, een uitnodigende plek om samen te borrelen of de dag door te nemen. De keuken beschikt over een strakke kastenwand en is uitgerust met hoogwaardige Siemens inbouwapparatuur, waaronder een inductiekookplaat, afzuigkap, combi-oven, vaatwasser en koel-/vriescombinatie.
De openslaande deuren naar de voortuin zorgen voor een heerlijk koffiemoment in de ochtendzon.
Eerste verdieping:
Op de eerste verdieping bereikt u via de overloop een ruime slaapkamer aan de achterzijde, momenteel ingericht als masterbedroom met een bijgetrokken kamer die is ingericht als inloopkast.
Aan de voorzijde bevindt zich een prachtige slaapkamer met extra veel lichtinval dankzij een extra raam in de zijgevel.
De moderne badkamer is van alle gemakken voorzien: een royaal ligbad, een douchegelegenheid met grote regendouche en handdouche, een breed wastafelmeubel met dubbele kraan en een handdoekenradiator.
Daarnaast is er een separaat toilet op deze verdieping, voorzien van hangcloset, inbouwreservoir en fonteintje, een praktische en comfortabele toevoeging.
Tweede verdieping:
De overloop op de tweede verdieping biedt toegang tot meerdere functionele ruimtes, waaronder een wasruimte met opstelplaats voor de was-/droogcombinatie, de unit voor mechanische ventilatie, de inverter voor de zonnepanelen en de cv-ketel (Intergas, 2018).
Aan de voorzijde bevindt zich een sfeervolle slaapkamer met een charmante erker en prachtig vrij uitzicht over de brede groenstrook. De extra lichtinval via het zijraam geeft deze kamer een serene, rustgevende sfeer.
Aan de achterzijde ligt een zeer royale slaap/werkkamer met een leuke doorkijk op de achterliggende waterplas. Hier kan eenvoudig een vijfde slaapkamer worden gerealiseerd.
Kenmerkend voor dit object is de rustige ligging, kindvriendelijke omgeving, parkachtige buurt, royale layout, 8 zonnepanelen, fijne voor-, zij- en achtertuin en vloerverwarming door de gehele woning.
Bijzonderheden:
- Eigen grond
- Uitbouw ca. 2,40m
- Begane grond ca. 3 meter hoog plafond
- Unieke erker zijgevel
- 8 zonnepanelen
- Energielabel A
- Vloerverwarming op alle verdiepingen
- Woning is voorzien van houten kozijnen met HR++ glas
- Woning is geheel voorzien van parketvloer
- Verwarming via cv-ketel
- Warmwatervoorziening via cv-ketel
- Verkoopvoorwaarden Arnold Taal Makelaardij van toepassing
- Oplevering in overleg.
Interesse in dit huis? Schakel direct uw eigen aankoopmakelaar in. Uw aankoopmakelaar komt op voor uw belang en bespaart u tijd, geld en zorgen. Bij ons zijn alle aankoopmakelaars welkom om uw belangen te behartigen. Adressen van collega aankoopmakelaars in Haaglanden kunt u bij ons opvragen.
Uw eigen woning nog niet verkocht? Doe de vrijblijvende verkoopcheck op onze kantoorpagina of bel kantoor voor een persoonlijk verkoopadvies waarin wij de mogelijkheden kunnen bespreken.
Ondanks de zorg die door ons aan de correcte invoer van de gegevens besteed wordt, kunnen wij niet verantwoordelijk gehouden en/of aansprakelijk gesteld worden voor eventuele fouten, omissies en/of onvolkomenheden in de gegevens.



















































































