Direct contact? Bel 070 – 707 12 40 | uitgeroepen tot beste makelaar van Zuid-Holland

Melis Stokezijde 157

Vraagprijs: € 350.000 k.k.

Arnold Taal

Kenmerken

Adres:Melis Stokezijde 157
2543 GJ Den Haag
Wijk:Bouwlust/Vrederust
Woonoppervlakte m2: 120
Verdieping: 6e
Aantal kamers: 5
Aantal slaapkamers: 2
Aantal badkamers: 1
Bouwjaar: 1979
Status:Verkocht

Beschrijving

Uniek penthouse met royaal dakterras en prachtig uitzicht.
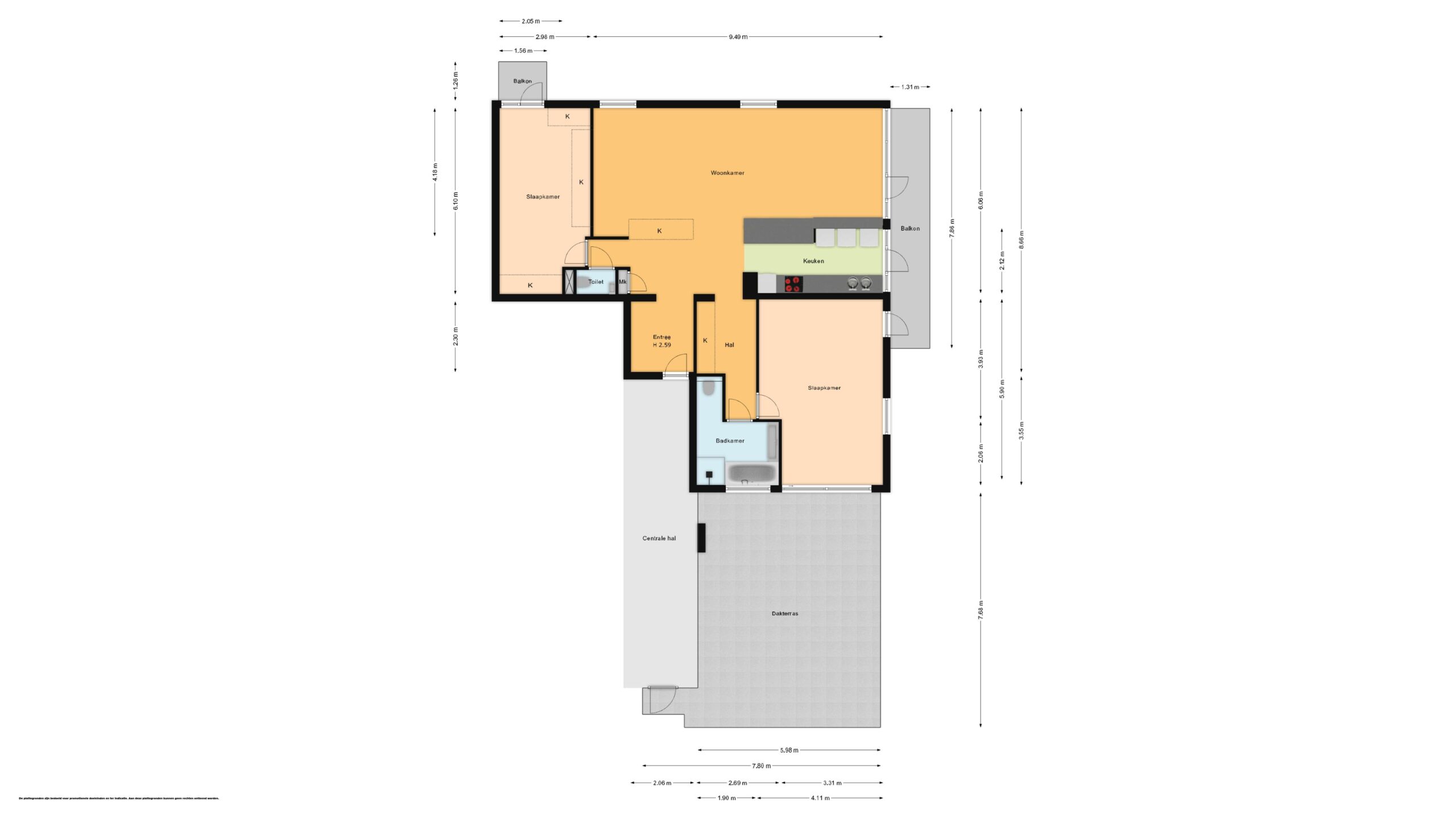
Op de 6e verdieping, in een groene en rustige omgeving aan de rand van Den Haag, ligt dit bijzondere penthouse (voormalige vijfkamerwoning). Dankzij de gewijzigde indeling beschikt de woning nu over een riante living en een royale masterbedroom. Daarnaast is er de mogelijkheid om eenvoudig een derde of zelfs een vierde slaapkamer te creëren.
Wat dit appartement echt bijzonder maakt, is de enorme buitenruimte: een dakterras van ca. 48 m² op het zuidwesten en maar liefst twee balkons. Hierdoor is er altijd een fijne plek in de zon om in alle rust te genieten van het uitzicht en de omgeving met veel privacy.
De woning voelt ruim en comfortabel aan en biedt veel mogelijkheden om geheel naar eigen wens in te richten. Bovendien beschikt het penthouse over een eigen berging in de onderbouw.
Voor deze woning een woonoppervlak van ca. 120m2.
Erfpacht tot en met 31 december 2030 zonder betalingsverplichting canon. Heruitgifte is in aanvraag. Energielabel D.
Dit unieke penthouse is ideaal gelegen aan de rand van Den Haag, met volop groen en recreatiemogelijkheden in de directe nabijheid. Het Uithofspark en recreatiegebied Madestein liggen op korte afstand en nodigen uit voor een heerlijke wandeling of fietstocht.
De bereikbaarheid is uitstekend: de A4 en andere uitvalswegen zijn snel en gemakkelijk bereikbaar. Daarnaast is er ruim voldoende parkeergelegenheid rondom het complex. Het openbaar vervoer is goed geregeld met tram 9 op loopafstand, waardoor u in korte tijd het centrum van Den Haag of Scheveningen bereikt.
Voor de dagelijkse boodschappen en gezellig winkelen zijn er meerdere winkelcentra in de omgeving, waaronder Leyweg en De Stede. Ook het charmante centrum van Wateringen ligt vlakbij.
Op slechts 15 minuten fietsen bereikt u Kijkduin, de duinen, het strand en de zee. Daarnaast zijn ook de International School of The Hague en andere voorzieningen eenvoudig bereikbaar.

Indeling:
Afgesloten entree met brievenbussen- en bellentableau met intercom. Vanuit hier toegang tot de bergingen, het trappenhuis en de lift. Het appartement is gelegen op de zesde verdieping.
Door de gewijzigde indeling is een ruimtelijk en comfortabel geheel ontstaan. Vanuit de hal met meterkast (9 groepen) en modern toilet met hangcloset, inbouwreservoir en fonteintje, bereikt u de royale living met halfopen keuken.
De keuken is uitgevoerd in twee rechte opstellingen. Deze beschikt onder andere over een dubbele spoelbak, een ruitvormige inductiekookplaat, afzuigkap (recirculatie), vaatwasser, en aansluitingen voor wasmachine en droger. In een nis bevindt zich een extra kastenwand met een koel-/vriescombinatie. Vanuit de keuken is er toegang tot een ruim balkon.
De woning biedt twee slaapkamers, waaronder een fijne slaapkamer met eigen balkon. De luxe, volledig betegelde badkamer beschikt over een ligbad, royale douchegelegenheid met regen- en handdouche en een breed wastafelmeubel.
De masterbedroom (oorspronkelijk twee kamers) is zeer royaal en geeft via een schuifpui toegang tot het riante dakterras. Dit dakterras van circa 48 m² is heerlijk beschut en dankzij de gunstige ligging op het zuidwesten een fantastische plek om optimaal van de zon te genieten.

Een heerlijke plek voor wie houdt van rust, ruimte en buitenleven, maar toch dicht bij alle voorzieningen van de stad wil wonen.

Bijzonderheden:
- Erfpacht waarvan de erfpachtcanon €1,13 (geen betalingsverplichting) bedraagt per jaar tot en met 31 december 2030
- Erfpachtvoorwaarden 1923 nummer 19
- Aanbieding heruitgifte in erfpacht is in aanvraag
- Eigen berging in de onderbouw
- Vrij parkeren (na slagboom)
- VvE is actief met een bijdrage van ca. € 301,74 per maand
- Voorschot stookkosten en water ca. € 182,02 per maand
- Collectieve opstalverzekering
- VvE is ingeschreven bij KvK
- 14/521e aandeel (VvE Melis Stokezijde 118 tot en met 180 even nummers, Parkzicht 3)
- Reserve per 31-12-2024 ca. € 107.544,- (blok 7)
- MJOP aanwezig
- Appartement is voorzien van houten en kunststof kozijnen met gedeeltelijk dubbel glas
- Hal, woonkamer en slaapkamers zijn voorzien van vloerbedekking
- Keuken is voorzien van plavuizen
- Energielabel D
- Verwarming via blokverwarming met warmtemeters
- Warmwatervoorziening via centrale voorziening (via VvE)
- Verkoopvoorwaarden Arnold Taal Makelaardij van toepassing
- Projectnotaris Maaldrink
- Oplevering in overleg, kan snel.

Interesse in dit huis? Schakel direct uw eigen aankoopmakelaar in. Uw aankoopmakelaar komt op voor uw belang en bespaart u tijd, geld en zorgen. Bij ons zijn alle aankoopmakelaars welkom om uw belangen te behartigen. Adressen van collega aankoopmakelaars in Haaglanden kunt u bij ons opvragen.

Uw eigen woning nog niet verkocht? Doe de vrijblijvende verkoopcheck op onze kantoorpagina of bel kantoor voor een persoonlijk verkoopadvies waarin wij de mogelijkheden kunnen bespreken.

Ondanks de zorg die door ons aan de correcte invoer van de gegevens besteed wordt, kunnen wij niet verantwoordelijk gehouden en/of aansprakelijk gesteld worden voor eventuele fouten, omissies en/of onvolkomenheden in de gegevens.

Video

Locatie