Direct contact? Bel 070 – 707 12 40 | uitgeroepen tot beste makelaar van Zuid-Holland

Hoenderloostraat 71

Vraagprijs: € 325.000 k.k.

Arnold Taal

Kenmerken

Adres:Hoenderloostraat 71
2573 RK Den Haag
Wijk:Rustenburg Oostbroek
Woonoppervlakte m2: 86
Verdieping: begane grond
Aantal kamers: 3
Aantal slaapkamers: 2
Aantal badkamers: 1
Bouwjaar: 1929
Status:Verkocht

Beschrijving

Verrassend speels ingedeeld appartement met hoekligging op de begane grond in een rustige straat met een praktische indeling; ruime woon-/eetkamer met veel lichtinval, 2 slaapkamers, keurige keuken en badkamer. Ideaal is de riante berging en mogelijkheid deze uit te breiden met een garage (vraagprijs € 50.000,- k.k.).
Voor deze woning geldt een woonoppervlak van ca. 86m2.
Eigen grond. Energielabel G.
Ideaal gelegen nabij het Zuiderpark met veel recreatiemogelijkheden en ook de unieke sportcampus met welbekend koperen uitstraling waar veel sporten samenkomen zoals zaalsport, strandsporten en zelfs een turnhal. Nabij uitvalswegen, winkelaanbod Dierenselaan, winkelcentrum Leyweg en de Haagse Markt. Openbaar vervoer met een goede verbinding naar het centrum van Den Haag en Centraal Station en Hollands Spoor.
De boulevard, duinen en het strand van Kijkduin zijn op zo’n 15 fietsminuten gelegen met gezellige horeca en breed strand maar ook de Zandmotor met watersportmogelijkheden zoals kitesurfen en wingfoilen.

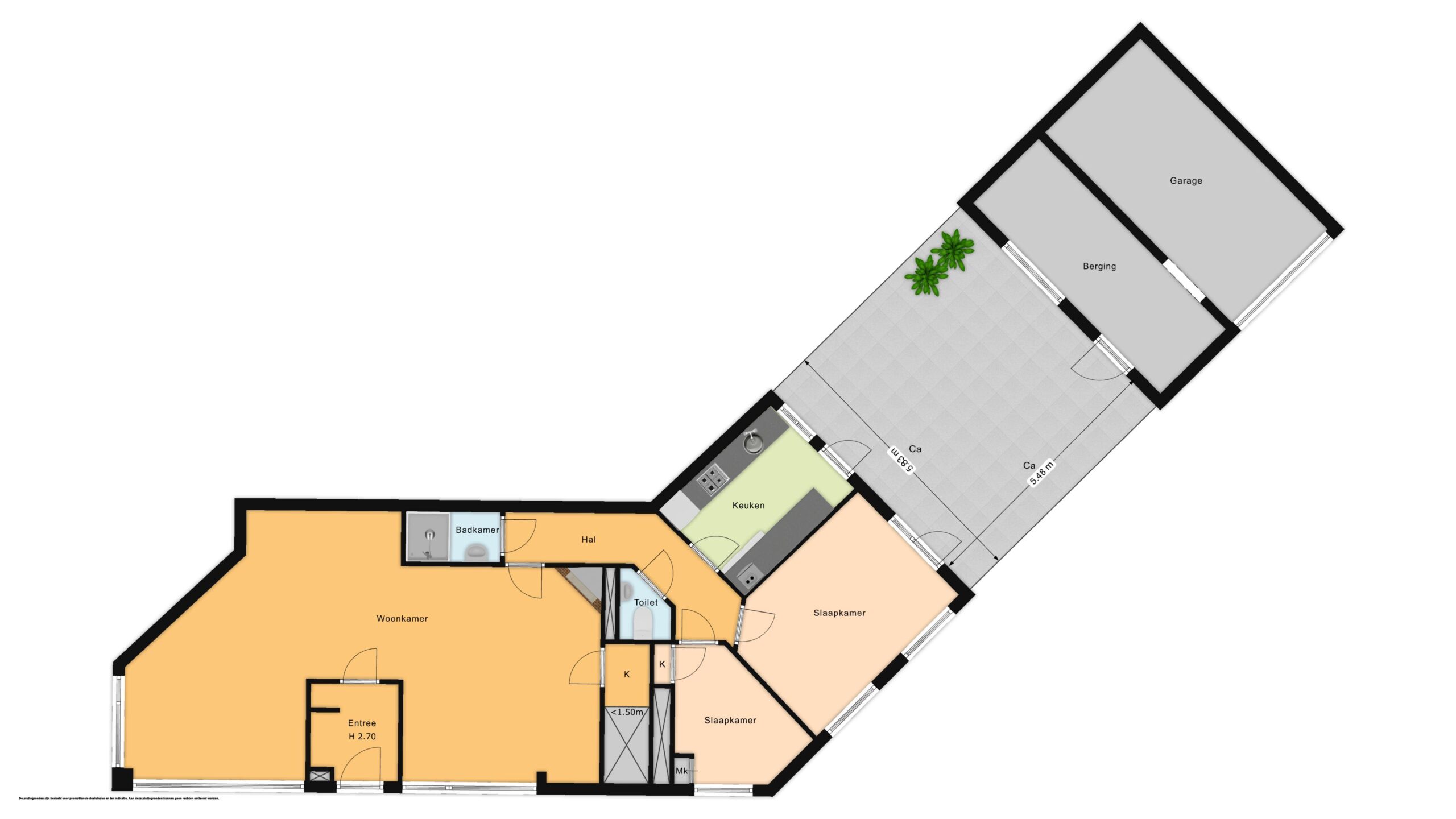
Indeling:
Sfeervol gelijkvloers appartement met veel lichtinval en eigen tuin met mogelijkheid voor een garage.

Entree op straatniveau naar de centrale hal met meterkast. De ruime woonkamer heeft dankzij de hoekligging veel lichtinval en een prettige sfeer. Vanuit de tussenhal is er toegang tot een separaat toilet met fonteintje en de volledig betegelde badkamer, voorzien van een douchecabine en een breed wasmeubel.
De keuken bevindt zich aan de achterzijde van de woning en is uitgevoerd in een rechte opstelling met veel kastruimte. De keuken beschikt over een 4-pits gaskookplaat, afzuigkap, en een tweede werkblad met extra bergruimte. Handig weggewerkt bevindt zich hier ook de opstelplaats voor de cv-ketel (Vaillant). Via de achterdeur is de achtertuin bereikbaar met een zij-ingang, met een praktische poort, ideaal voor bijvoorbeeld motorrijders. De berging is momenteel verbonden met de garage, die voorzien is van een lichtkoepel.
De garage is afzonderlijk te koop en maakt onderdeel uit van dezelfde VvE.
De woning beschikt over twee slaapkamers, waaronder een royale masterbedroom met directe toegang tot de achtertuin.

Kenmerkend voor dit object is de centrale ligging t.o.v. winkelcentra, Zuiderpark en uitvalswegen.

Bijzonderheden:
- Eigen grond
- Garage (nr 65) beschikbaar ca. 16m2, vraagprijs € 50.000,- k.k.
- VvE is actief met een bijdrage van € 168,- per maand voor appartement
- VvE is actief met een bijdrage van € 28,- per maand voor de garage
- Collectieve opstalverzekering
- VvE is ingeschreven bij KvK
- 6/19e aandeel voor het appartement
- 1/19e aandeel voor de garage
- VvE bestaat uit 4 leden (Hoenderlostraat 65/67/69/71 te Den Haag)
- Reserve per 31-12-2024 is ca. € 12.811,-
- Appartement is voorzien van kunststof kozijnen met HR++ glas behoudens de keuken
- Keuken is voorzien van houten kozijnen met enkel glas
- Appartement is voorzien van vloerbedekking
- Energielabel G
- Verwarming via cv-ketel
- Warmwatervoorziening via cv-ketel
- Verkoopvoorwaarden Arnold Taal Makelaardij van toepassing,
- Oplevering in overleg, kan snel.

Interesse in dit huis? Schakel direct uw eigen aankoopmakelaar in. Uw aankoopmakelaar komt op voor uw belang en bespaart u tijd, geld en zorgen. Bij ons zijn alle aankoopmakelaars welkom om uw belangen te behartigen. Adressen van collega aankoopmakelaars in Haaglanden kunt u bij ons opvragen.

Uw eigen woning nog niet verkocht? Doe de vrijblijvende verkoopcheck op onze kantoorpagina of bel kantoor voor een persoonlijk verkoopadvies waarin wij de mogelijkheden kunnen bespreken.

Ondanks de zorg die door ons aan de correcte invoer van de gegevens besteed wordt, kunnen wij niet verantwoordelijk gehouden en/of aansprakelijk gesteld worden voor eventuele fouten, omissies en/of onvolkomenheden in de gegevens.

Video

Locatie