Direct contact? Bel 070 – 707 12 40 | uitgeroepen tot beste makelaar van Zuid-Holland

Gabriela Mistrallaan 11

Vraagprijs: € 875.000 k.k.

Arnold Taal

Kenmerken

Adres:Gabriela Mistrallaan 11
2553 DE Den Haag
Wijk:Vroondaal
Perceel m2: 239
Woonoppervlakte m2: 136
Aantal kamers: 5
Aantal slaapkamers: 4
Aantal badkamers: 1
Bouwjaar: 2016
Status:Verkocht onder voorbehoud

Beschrijving

In de mooiste buitenwijk van Den Haag, Vroondaal, staat deze fraaie 2-onder-1-kapwoning die klassieke architectuur combineert met modern wooncomfort. Met een garage, oprit en voortuin beschikt de woning over maar liefst drie parkeerplaatsen op eigen terrein. De stijl is geïnspireerd op het geliefde Statenkwartier, wat zichtbaar is in de statige uitstraling, het oog voor detail en het karaktervolle ontwerp. Een huis met klasse en hedendaags woonplezier waar je royaal en rustig woont.
De lichte living is een fijne plek om te ontspannen. De openslaande deuren verbinden de woning op een natuurlijke manier met de verzorgde achtertuin op het noordwesten. Dankzij de brede tuin en de gunstige ligging geniet je hier vanaf circa 11.00 uur van veel zonuren.
Aan de voorzijde bevindt zich de moderne keuken, volledig uitgerust met hoogwaardige inbouwapparatuur en voorzien van veel werk- en opbergruimte. Terwijl je kookt, kijk je uit op de rustige, groene omgeving, een prettige plek om samen te komen.
Op de verdiepingen vind je vier ruime slaapkamers en een complete badkamer, ideaal voor gezinnen die comfort en privacy waarderen.
De woning is gelegen in een rustige straat met een kindvriendelijke uitstraling.
Voor deze woning een perceel van ca. 239m2 en een woonoppervlak van ca. 136m2.
Eigen grond. Energielabel A.
Ideaal gelegen met verrassend veel groen in de omgeving waardoor een parkachtige uitstraling in natuur- en recreatiegebied Madestein, oude Landgoed Ockenburgh en veel sportverenigingen zoals voetbal, hockey, zwembad De Boetzelaer, Martial Arts en niet te vergeten De Uithof met een ruime keuze uit (sport-) activiteiten met een ski-, schaats- en padelcentrum. Een gunstige ligging t.o.v. winkelcentra Houtwijk en Loosduinen maar ook Poeldijk is goed bereikbaar. Verder uitvalswegen (A4) en scholen waaronder internationale school Kijkduin en aan de rand van de wijk Kindcentrum Vroondaal met een basisschool en kinderopvang.
Daarnaast kleinschalig winkelaanbod waaronder een Albert Heijn, bakker Segaar, apotheek en een praktijk voor een huisarts.
De boulevard, duinen en het strand van Kijkduin zijn op zo’n 10 fietsminuten gelegen met gezellige horeca en breed strand maar ook de Zandmotor met watersportmogelijkheden zoals wingfoilen, kite-, golf- en windsurfen.

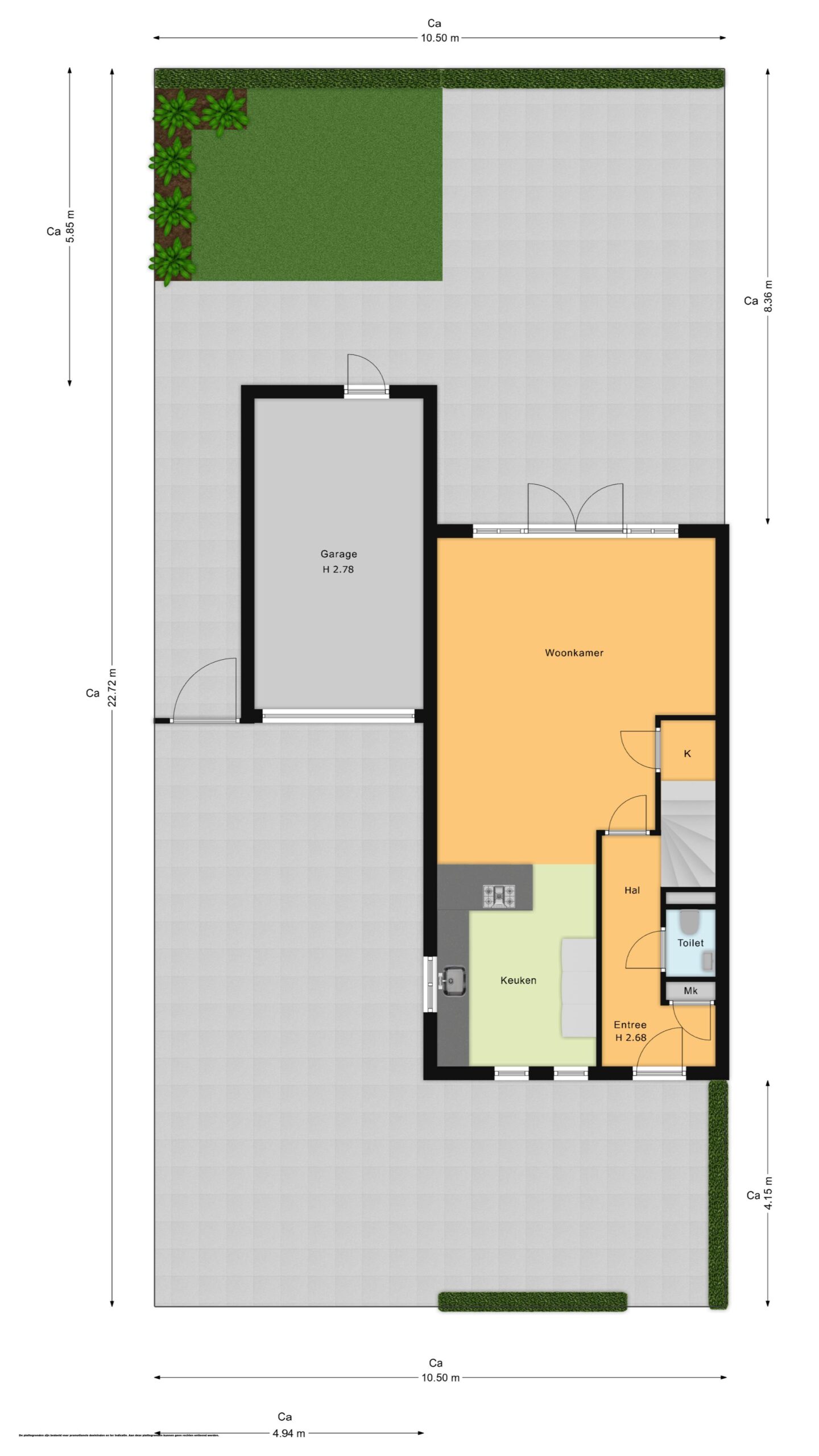
Indeling:
Prettige voortuin en oprit met mogelijkheid voor 3 auto’s, garage en toegang tot de woning.

Bij binnenkomst tref je een ruime hal met meterkast (8 groepen) en een modern toilet voorzien van hangcloset, inbouwreservoir en fonteintje. Vanuit de hal bereik je de sfeervolle woonkamer, waarbij de achterpui met veel glas direct voor een lichte en open sfeer zorgt. Via de openslaande deuren loop je zo de brede achtertuin op het noordwesten in. De tuin is een heerlijke plek voor iedereen die privacy waardeert: er bevinden zich geen woningen direct achter de tuin, waardoor je hier meer rust en vrijheid ervaart dan gebruikelijk. Dankzij de gunstige ligging geniet je vanaf circa 11.00 uur tot zonsondergang van veel zonuren. De tuin beschikt bovendien over een poort naar de oprit en een loopdeur naar de garage.
Aan de voorzijde van de woning ligt de moderne keuken in hoekopstelling, voorzien van een strakke kastenwand en een praktische ontbijtbar met drie barkrukken. Een gezellige plek om te borrelen met vrienden of te ontbijten met het gezin. De keuken is uitgerust met een brede 5-pits gaskookplaat, afzuigkap, oven, magnetron, vaatwasser, grote koelkast, grote vriezer en een Quooker.

Eerste verdieping:
De overloop biedt toegang tot een modern tweede toilet met hangcloset, inbouwreservoir en fonteintje. Aan de voorzijde bevindt zich een ruime slaapkamer, die dankzij de hoekligging profiteert van veel lichtinval.
De moderne, volledig betegelde badkamer is stijlvol afgewerkt en uitgerust met een ligbad, separate douche, een breed wastafelmeubel met dubbele kraan en een handdoekenradiator.
Aan de achterzijde liggen nog twee slaapkamers, waarvan één momenteel in gebruik is als praktische en ruime kleedkamer.

Tweede verdieping:
Aan de voorzijde van de woning bevindt zich een riante masterbedroom met een indrukwekkende nokhoogte van circa 3,70 meter, wat zorgt voor een ruimtelijk en licht geheel. Vanuit deze kamer is er toegang tot de wasruimte, voorzien van de unit voor mechanische ventilatie en een hybride lucht/water warmtepomp, bestaande uit een warmtepomp en een cv-deel. Daarnaast is hier de opstelplaats voor zowel de wasmachine als de wasdroger.

Kenmerkend voor deze woning zijn de rustige ligging, de kindvriendelijke omgeving, de parkachtige woonbuurt en de aanwezigheid van een garage en maar liefst drie parkeerplaatsen op eigen terrein.

Bijzonderheden:
- Eigen grond
- Garage
- Mogelijkheid om 3 auto’s te parkeren
- Vloerverwarming op de begane grond
- Begane grond is voorzien van keramische parket in stroken gelegd
- 1e en 2e verdieping zijn voorzien van laminaat en vloerbedekking
- Woning is voorzien van houten kozijnen met HR++ glas
- Energielabel A
- Zonnepaneel op het hoofddak
- Schilderwerk buitenzijde uitgevoerd in 2025
- Verwarming via hybride lucht/waterpomp
- Warmwatervoorziening via cv-ketel
- Verkoopvoorwaarden Arnold Taal Makelaardij van toepassing
- Oplevering in overleg.

Interesse in dit huis? Schakel direct uw eigen aankoopmakelaar in. Uw aankoopmakelaar komt op voor uw belang en bespaart u tijd, geld en zorgen. Bij ons zijn alle aankoopmakelaars welkom om uw belangen te behartigen. Adressen van collega aankoopmakelaars in Haaglanden kunt u bij ons opvragen.

Uw eigen woning nog niet verkocht? Doe de vrijblijvende verkoopcheck op onze kantoorpagina of bel kantoor voor een persoonlijk verkoopadvies waarin wij de mogelijkheden kunnen bespreken.

Ondanks de zorg die door ons aan de correcte invoer van de gegevens besteed wordt, kunnen wij niet verantwoordelijk gehouden en/of aansprakelijk gesteld worden voor eventuele fouten, omissies en/of onvolkomenheden in de gegevens.

Video

Locatie