Direct contact? Bel 070 – 707 12 40 | uitgeroepen tot beste makelaar van Zuid-Holland

Fultonstraat 109

Vraagprijs: € 300.000 k.k.

Arnold Taal

Kenmerken

Adres:Fultonstraat 109
2562 XD Den Haag
Wijk:Valkenboskwartier
Woonoppervlakte m2: 77
Verdieping: 1e
Aantal kamers: 3
Aantal slaapkamers: 1
Aantal badkamers: 1
Bouwjaar: 1912
Status:Te koop

Beschrijving

Welkom in dit charmante appartement op de eerste verdieping. De woning beschikt over een royale en lichte living die een prettige leefruimte biedt.
De keuken en badkamer zijn eenvoudig uitgevoerd, maar netjes onderhouden. Daarnaast is er een riante slaapkamer aanwezig.
Een bijzonder pluspunt zijn de twee balkons aan de achterzijde van de woning, waar u heerlijk kunt genieten van zowel buitenruimte als een fijne lichtinval gedurende de dag.
Voor deze woning een woonoppervlak van ca. 77m2.
Eigen grond. Energielabel in aanvraag.
De woning is ideaal gelegen in het rustige en geliefde Valkenboskwartier. Op loopafstand bevinden zich de Weimarstraat en de Fahrenheitstraat, waar u een gevarieerd aanbod aan winkels, speciaalzaken en horecagelegenheden vindt. Openbaar vervoer is om de hoek aanwezig en biedt een uitstekende verbinding naar het bruisende centrum van Den Haag en het Centraal Station. Daarnaast zijn de boulevard, de duinen en het strand van Scheveningen binnen circa 15 fietsminuten bereikbaar.

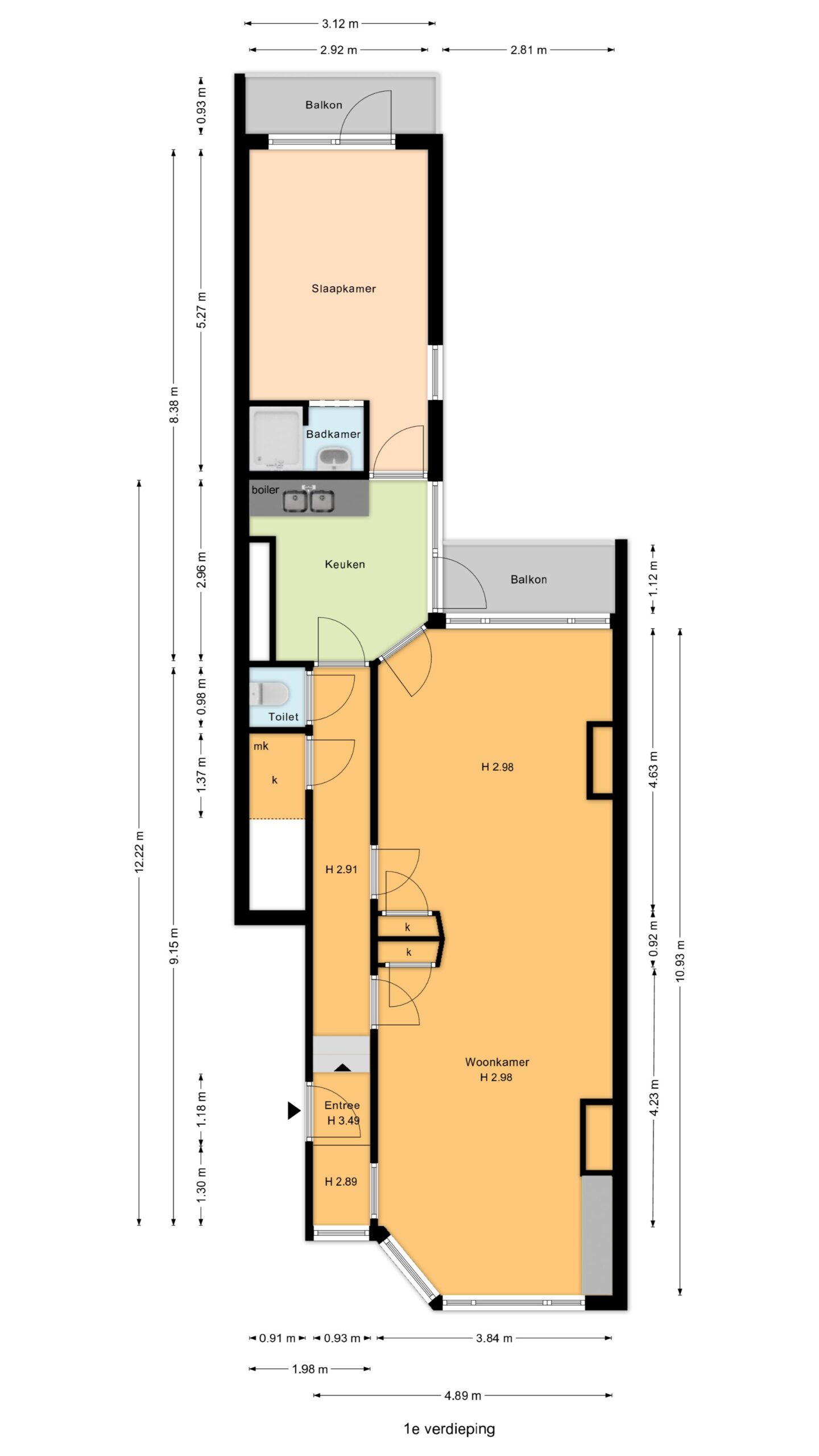
Indeling:
Via het fraaie, karakteristieke Haagse portiek bereikt u de entree van het appartement op de eerste verdieping, welke via een lichte trapopgang met drie treden toegankelijk is.
Bij binnenkomst komt u in de hal met een vaste kast waarin zich de meterkast (3 groepen) bevindt. Tevens treft u hier een keurig separaat toilet.
Vanaf de overloop betreedt u de verrassend lichte living. Dankzij de royale raampartijen aan zowel de voor- als achterzijde geniet de ruimte van een prettige hoeveelheid daglicht. Een sfeervol detail is de erker aan de voorzijde, vanwaar u een leuk uitzicht heeft op de straat.
De keuken is zowel vanuit de living als de hal bereikbaar en beschikt over een eenvoudige, rechte opstelling met kastruimte en een opstelplaats voor een boiler (77 liter). Daarnaast is er voldoende ruimte voor een was-/droogcombinatie en een gasfornuis. Vanuit de keuken heeft u toegang tot één van de balkons.
Aan de achterzijde van de woning bevindt zich de ruime slaapkamer met directe toegang tot het tweede balkon, waar u kunt genieten van de middag- en avondzon.
Vanuit de slaapkamer bereikt u de volbetegelde, compacte badkamer, voorzien van een douche en een vaste wastafel.

Kenmerkend voor dit appartement zijn de rustige, centrale ligging en de royale opzet met maar liefst twee balkons en een ruime slaapkamer.

Bijzonderheden:
- Eigen grond
- VvE is actief met een bijdrage van ca. € 120 per maand
- Collectieve opstalverzekering
- VvE is ingeschreven bij KvK
- 1/3e aandeel
- VvE bestaat uit 3 leden (Fultonstraat 107/109/111 te Den Haag)
- Reserve per 31-12-2025 is ca. € 13.714,-
- MJOP aanwezig
- BSG Valkenboskwartier
- Appartement is voorzien van kunststof kozijnen met HR++ glas behoudens kozijn slaapkamer
- Slaapkamer is voorzien van een houten kozijn met dubbel glas
- Appartement is grotendeels voorzien van een vloerbedekking
- Energielabel in aanvraag
- Verwarming via gaskachels (reeds verwijderd), de zichtbare radiatoren zijn niet in gebruik
- Warmwatervoorziening via boiler (77 liter)
- Verkoopvoorwaarden Arnold Taal Makelaardij van toepassing
- Oplevering in overleg, kan snel

Interesse in dit huis? Schakel direct uw eigen aankoopmakelaar in. Uw aankoopmakelaar komt op voor uw belang en bespaart u tijd, geld en zorgen. Bij ons zijn alle aankoopmakelaars welkom om uw belangen te behartigen. Adressen van collega aankoopmakelaars in Haaglanden kunt u bij ons opvragen.

Uw eigen woning nog niet verkocht? Doe de vrijblijvende verkoopcheck op onze kantoorpagina of bel kantoor voor een persoonlijk verkoopadvies waarin wij de mogelijkheden kunnen bespreken.

Ondanks de zorg die door ons aan de correcte invoer van de gegevens besteed wordt, kunnen wij niet verantwoordelijk gehouden en/of aansprakelijk gesteld worden voor eventuele fouten, omissies en/of onvolkomenheden in de gegevens.

Video

Locatie