Direct contact? Bel 070 – 707 12 40 | uitgeroepen tot beste makelaar van Zuid-Holland

2e Van Blankenburgstraat 104

Vraagprijs: € 850.000 k.k.

Arnold Taal

Kenmerken

Adres:2e Van Blankenburgstraat 104
2517 HE Den Haag
Wijk:Duinoord
Woonoppervlakte m2: 158
Verdieping: 2e en 3e
Aantal kamers: 7
Aantal slaapkamers: 5
Aantal badkamers: 2
Bouwjaar: 1900
Status:Verkocht onder voorbehoud

Beschrijving

Karakteristieke en recent volledig gerenoveerde (2023) bovenwoning in het hart van Duinoord.
In het geliefde en statige Duinoord ligt deze smaakvol gerenoveerde en royale bovenwoning waarin authentieke details en modern wooncomfort naadloos samenkomen. De woning ademt karakter dankzij de hoge plafonds, stijlvolle paneeldeuren en een warme, uitnodigende sfeer die direct bij binnenkomst voelbaar is.
De ruime woonkamer en suite is een echte eyecatcher: het plafond van 3,14 meter hoogte met fraaie details en ornamenten geeft de ruimte een statige, bijna monumentale uitstraling. De combinatie van klassieke details en een moderne afwerking zorgt voor een perfect evenwicht tussen charme en eigentijds wooncomfort.
De smaakvolle keuken met riant kookeiland vormt het hart van de woning. Hier komen stijl, comfort en functionaliteit samen, ideaal om uitgebreid te koken, te borrelen en te genieten van lange avonden met familie of vrienden.
De woning beschikt over drie ruime slaapkamers en twee werkkamers, perfect voor thuiswerken gasten of hobby’s. De masterbedroom doet denken aan een luxe hotelsuite, met een vrijstaand ligbad en een royaal aangrenzend terras, waar je in alle rust kunt genieten van de zon.
De volledig betegelde luxe badkamer is uitgevoerd met hoogwaardige materialen en modern sanitair. Daarnaast is er een mogelijkheid tot het realiseren van een dakterras.
Bovendien is er een mogelijkheid tot het realiseren van een dakterras.
Voor deze woning een woonoppervlak van ca. 158m2 met buitenruimte van ca. 18m2.
Eigen grond. Energielabel A.
Ideaal is de rustige ligging op loopafstand van de gezellige Reinkenstraat met haar diverse winkels en gezellige koffie- en lunchzaken. Ook de Frederik Hendriklaan (De Fred) ligt in de buurt en biedt een ruime keuze aan restaurants, terrassen en een grote diversiteit aan winkels.
Het openbaar vervoer bevindt zich om de hoek, waardoor je in korte tijd in het centrum van Den Haag bent. Daarnaast zijn de boulevard, het strand en de zee van Scheveningen op slechts 15 minuten fietsen gelegen, ideaal voor een ochtendwandeling of een zomerse stranddag.

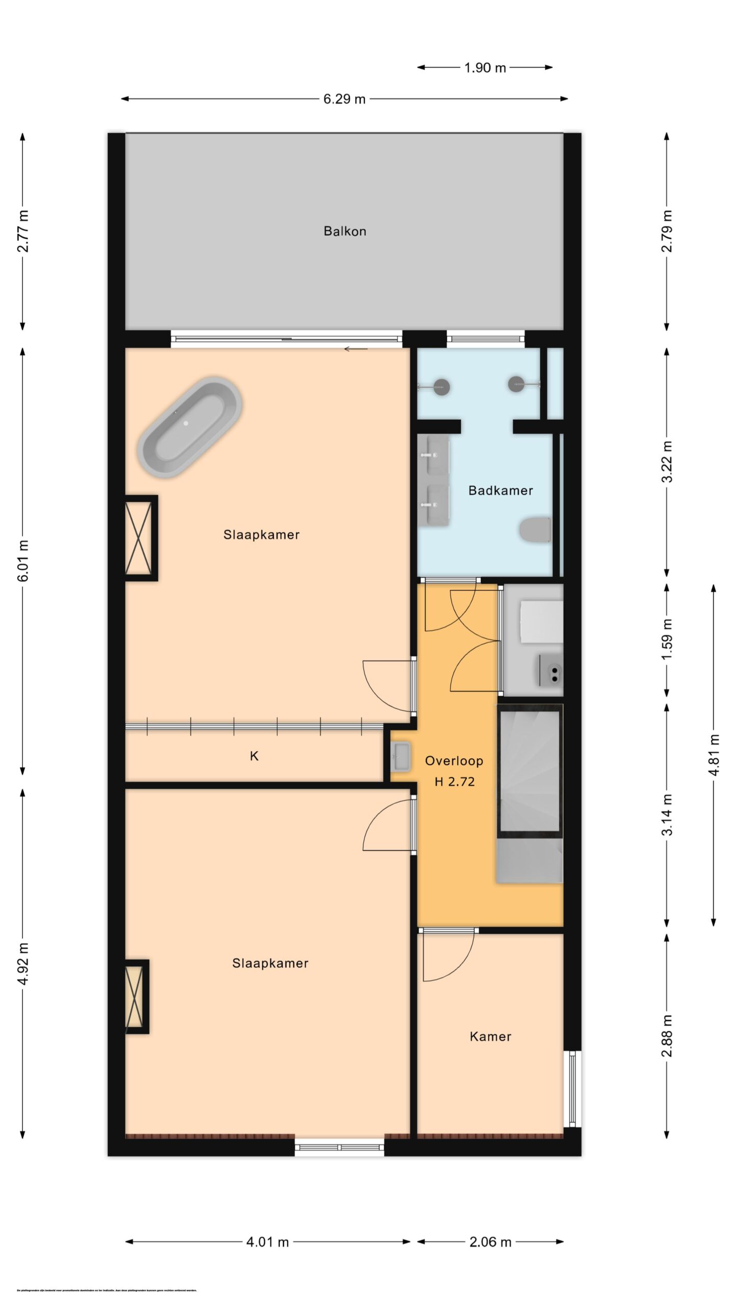
Indeling:
Via eigen entree op straatniveau komt u in de hal met de meterkast (voorzien van 11 groepen) en trapopgang naar de tweede verdieping.

Tweede verdieping: al bij de overloop valt direct het uitmuntende afwerkingsniveau op: strak stucwerk, luxe binnendeuren en een prachtige visgraatvloer. Er is een separaat, volledig betegeld toilet voorzien van een hangcloset, inbouwreservoir en fonteintje.
Via dubbele stalen deuren met glas bereikt u de riante woonkamer ensuite, voorzien van de karakteristieke schuifseparatie die het woongedeelte sfeervol verdeelt in een zit- en eetkamer.
Aan de achterzijde bevindt zich de smaakvolle keuken met een enorm kookeiland, voorzien van kastruimte aan beide zijden en een strakke kastenwand. De keuken is uitgerust met hoogwaardige inbouwapparatuur waaronder een inductiekookplaat met geïntegreerde afzuiging, Quooker (plat, bruisend en gefilterd water), vaatwasser, oven, warmhoudlade, combimagnetron, grote koelkast en een grote vriezer.
De plafonds met ornamenten en de ensuite met de originele schuifdeuren en vaste kasten zorgen voor een onmiskenbaar karakter. Aan de voorzijde bevindt zich een sfeervolle living, terwijl er zowel aan de voor- als achterzijde een slaapkamer is gesitueerd (de achterkamer, voormalig keuken, is tevens ideaal als werkkamer).

Derde verdieping: De overloop is licht en ruim dankzij de grote lichtkoepel, die zorgt voor een prettige natuurlijke lichtinval. Een leuk detail is het wasmeubel met kleine waskom. Daarnaast is er een vaste kast met opstelplaats voor de wasmachine en droger, en de cv-ketel (Remeha, 2024).
De masterbedroom doet denken aan een luxe hotelsuite: een royale kamer met een vrijstaand ligbad, een ruime inloopkast en een heerlijk terras op het zuidoosten, waar u in alle rust kunt genieten van de ochtendzon.
De luxe, volledig betegelde badkamer is uitgerust met een dubbele inloopdouche, een breed wasmeubel met dubbele kraan, een elektrische handdoekenradiator en een modern toilet met hangcloset en inbouwreservoir.
Aan de voorzijde bevinden zich nog twee goed bemeten slaapkamers.

Via een vaste trap is het dak bereikbaar, waar zich nog een grote lichtkoepel bevindt. Deze ruimte biedt uitstekende mogelijkheden voor het realiseren van een dakterras of het plaatsen van zonnepanelen.

Kenmerkend: een heerlijk appartement met karakter, hedendaags comfort, royale layout met een luxe keuken en badkamer en een ruime buitenruimte, perfect voor wie op zoek is naar rustig wonen met alle voorzieningen dichtbij.

Bijzonderheden:
- Eigen grond
- Energielabel A
- BSG DUINOORD
- Vergunning voor aanleg dakterras
- VvE is actief met een bijdrage van ca. € 141,- per maand
- Collectieve opstalverzekering
- VvE is ingeschreven bij KvK
- 4/9e aandeel
- VvE bestaat uit 2e van Blankenburgstraat 100B/102/104 te Den Haag
- Reserve per 13-10-2025 ca. € 8.474,-
- Appartement is aan de voorzijde voorzien van kunststof kozijnen met HR++ glas
- Appartement is aan de achterzijde voorzien van kunststof kozijnen met HR++ glas
- Appartement is voorzien van pvc vloeren
- Verwarming via cv-ketel
- Warmwatervoorziening via cv-ketel
- Verkoopvoorwaarden Arnold Taal Makelaardij van toepassing
- Oplevering in overleg, kan snel.

Interesse in dit huis? Schakel direct uw eigen aankoopmakelaar in. Uw aankoopmakelaar komt op voor uw belang en bespaart u tijd, geld en zorgen. Bij ons zijn alle aankoopmakelaars welkom om uw belangen te behartigen. Adressen van collega aankoopmakelaars in Haaglanden kunt u bij ons opvragen.

Uw eigen woning nog niet verkocht? Doe de vrijblijvende verkoopcheck op onze kantoorpagina of bel kantoor voor een persoonlijk verkoopadvies waarin wij de mogelijkheden kunnen bespreken.

Ondanks de zorg die door ons aan de correcte invoer van de gegevens besteed wordt, kunnen wij niet verantwoordelijk gehouden en/of aansprakelijk gesteld worden voor eventuele fouten, omissies en/of onvolkomenheden in de gegevens.

Video

Locatie