Direct contact? Bel 070 – 707 12 40 | uitgeroepen tot beste makelaar van Zuid-Holland

Wachtumstraat 57

Vraagprijs: € 475.000 k.k.

Arnold Taal

Kenmerken

Adres:Wachtumstraat 57
2545 WN Den Haag
Wijk:Morgenstond
Perceel m2: 156
Woonoppervlakte m2: 95
Aantal kamers: 4
Aantal slaapkamers: 3
Aantal badkamers: 1
Bouwjaar: 2009
Status:Verkocht

Beschrijving

Deze ruime en verzorgde woning biedt alles wat je nodig hebt voor comfortabel en toekomstbestendig wonen. De royale living met veel lichtinval loopt naadloos over in de moderne open keuken, die is voorzien van alle hedendaagse gemakken. De moderne en complete badkamer maakt het mogelijk om de woning direct te betrekken, zonder verbouwingsplannen.
De woning beschikt over drie ruime slaapkamers, ideaal voor gezinnen of werken aan huis. De royale achtertuin is gunstig gelegen op het noordwesten en biedt volop mogelijkheden om van de zon te genieten. Daarnaast zijn een berging en achterom aanwezig.
De woning is gelegen in de kindvriendelijke woonwijk La Ligne, één van de eerste projecten waarbij de woningen zijn aangesloten op een duurzaam verwarmingssysteem. Zowel de woning als het tapwater worden verwarmd door diepe aardwarmte, waardoor alle vertrekken zijn voorzien van vloerverwarming en er geen cv-ketel meer aanwezig is. Dit zorgt voor comfortabel wonen met lage energielasten.
Voor deze woning een perceel van ca. 156m2 en een woonoppervlak van ca. 95m2.
Erfpacht is eeuwigdurend geregeld waarbij de canon is afgekocht. Energielabel A+.
Een gunstige ligging t.o.v. winkelcentra Leyweg en Houtwijk en diverse sportverenigingen. Openbaar vervoer op loopafstand via bus of tram richting centrum van Den Haag en een goede verbinding met Centraal station maar ook Kijkduin en Scheveningen. Verder in de omgeving scholen en uitvalswegen.
De boulevard, duinen en het strand van Kijkduin zijn op zo’n 15 fietsminuten gelegen met gezellige horeca en breed strand maar ook de Zandmotor met watersportmogelijkheden zoals kitesurfen en wingfoilen.

Indeling:
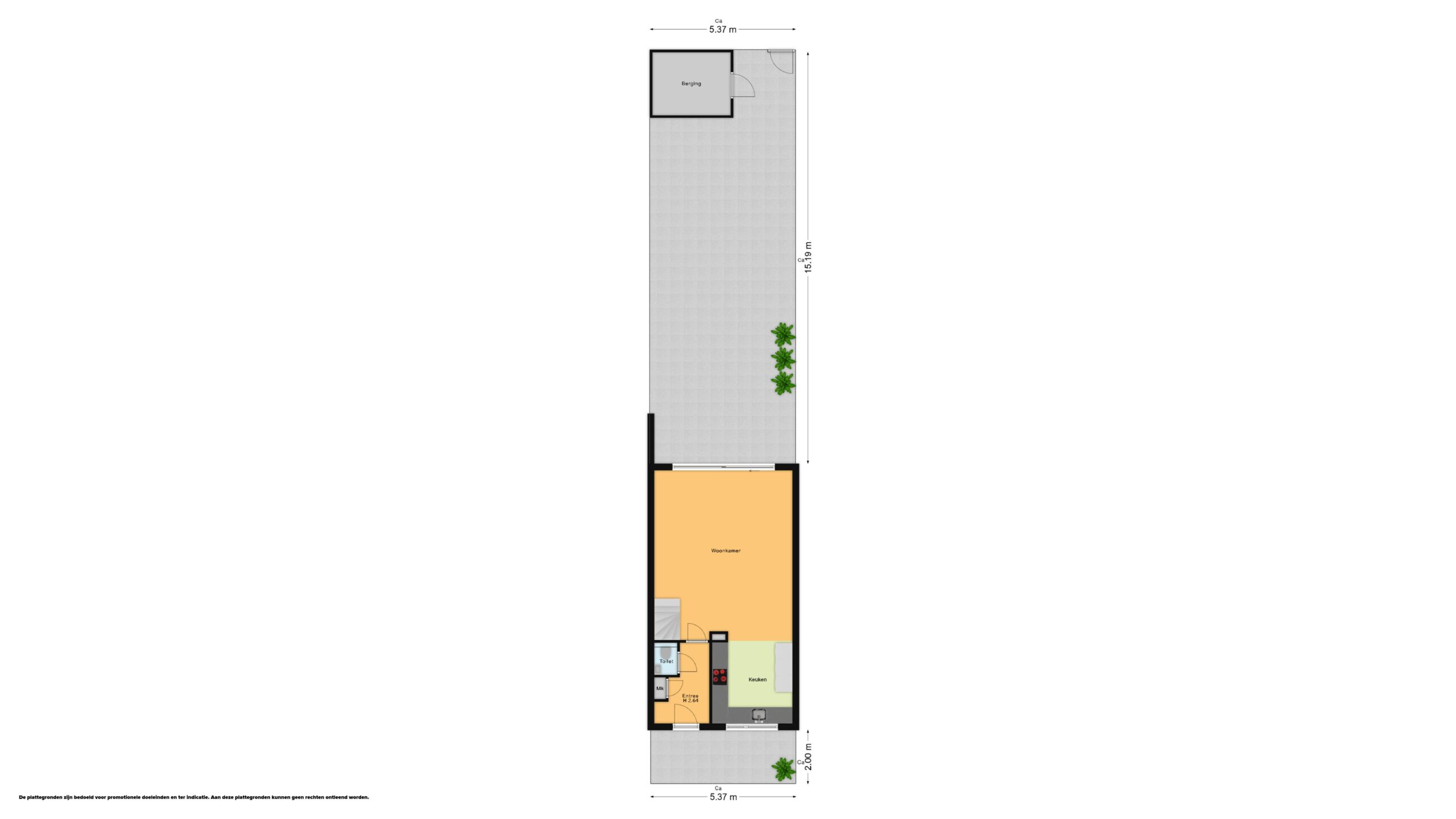
Aan de voorzijde beschikt de woning over een breed trottoir met een strook waar desgewenst een bankje geplaatst kan worden, met aansluitend de entree van de woning.
Je komt binnen in de hal met de meterkast (9 groepen) en de unit stadsverwarming. Het moderne, volledig betegelde toilet is uitgevoerd met een hangcloset, inbouwreservoir en fonteintje.
De royale living is sfeervol en afgewerkt met inbouwspots. De grote schuifpui zorgt voor veel licht en een prettig zicht op de diepe achtertuin (ca. 15 meter). In de tuin vind je een praktische houten berging en dankzij de achterom kom je ook met de fiets makkelijk thuis.
Aan de voorzijde van de woning bevindt zich de moderne keuken in hoekopstelling met een strakke kastenwand. Door de opstelling is dit een ideale plek om samen te koken en te borrelen. De keuken is uitgerust met een inductiekookplaat, afzuigkap (recirculatie), oven, magnetron, vaatwasser, koelkast en vriezer.

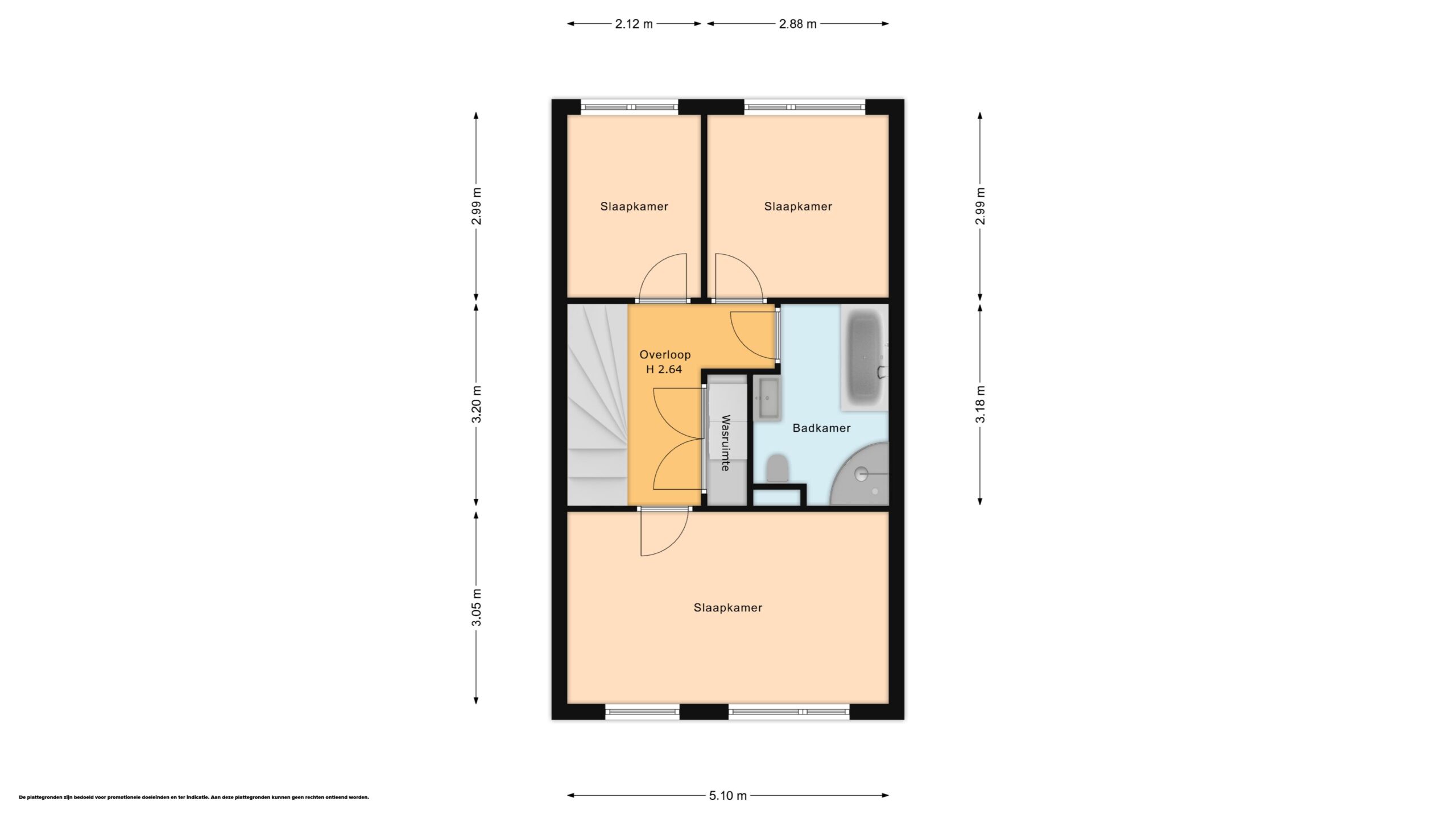
Eerste verdieping: Op de eerste verdieping bevindt zich de centrale overloop met een vaste kast, waarin de opstelplaats voor een was-/droogcombinatie en de unit mechanische ventilatie is gesitueerd.
Aan de voorzijde ligt een riante masterbedroom met een prettig en levendig straatbeeld. De luxe badkamer is volledig betegeld en uitgevoerd met een whirlpool, een luxe douchecabine met jets, een modern wastafelmeubel en een tweede toilet met hangcloset en inbouwreservoir. Ook hier zorgt een strak verlaagd plafond met sfeervolle inbouwspots voor een moderne uitstraling.
Aan de achterzijde bevinden zich twee slaapkamers met uitzicht over de achtertuin.

Kenmerkend voor deze woning zijn de rustige en toch centrale ligging, de ruime living met moderne open keuken, de luxe badkamer, drie volwaardige slaapkamers en de riante achtertuin.

Bijzonderheden
- Erfpacht is eeuwigdurend uitgegeven (notarieel) waarbij de erfpachtcanon is afgekocht
- Erfpachtvoorwaarden 1986 herziening 1993/2008
- Energielabel A+
- Mogelijkheid voor een extra verdieping
- Woning is voorzien van houten kozijnen met HR++ glas
- Vloerverwarming alle verdiepingen
- Woning is voorzien van laminaat
- Verwarming via stadsverwarming
- Warmwatervoorziening via stadsverwarming
- Verkoopvoorwaarden Arnold Taal Makelaardij van toepassing
- Oplevering in overleg, kan snel.

Interesse in dit huis? Schakel direct uw eigen aankoopmakelaar in. Uw aankoopmakelaar komt op voor uw belang en bespaart u tijd, geld en zorgen. Bij ons zijn alle aankoopmakelaars welkom om uw belangen te behartigen. Adressen van collega aankoopmakelaars in Haaglanden kunt u bij ons opvragen.

Uw eigen woning nog niet verkocht? Doe de vrijblijvende verkoopcheck op onze kantoorpagina of bel kantoor voor een persoonlijk verkoopadvies waarin wij de mogelijkheden kunnen bespreken.

Ondanks de zorg die door ons aan de correcte invoer van de gegevens besteed wordt, kunnen wij niet verantwoordelijk gehouden en/of aansprakelijk gesteld worden voor eventuele fouten, omissies en/of onvolkomenheden in de gegevens.

Video

Locatie