Valkenboskade 135
Vraagprijs: € 450.000 k.k.

Kenmerken
| Adres: | Valkenboskade 135 2563 GR Den Haag |
| Wijk: | Valkenboskwartier |
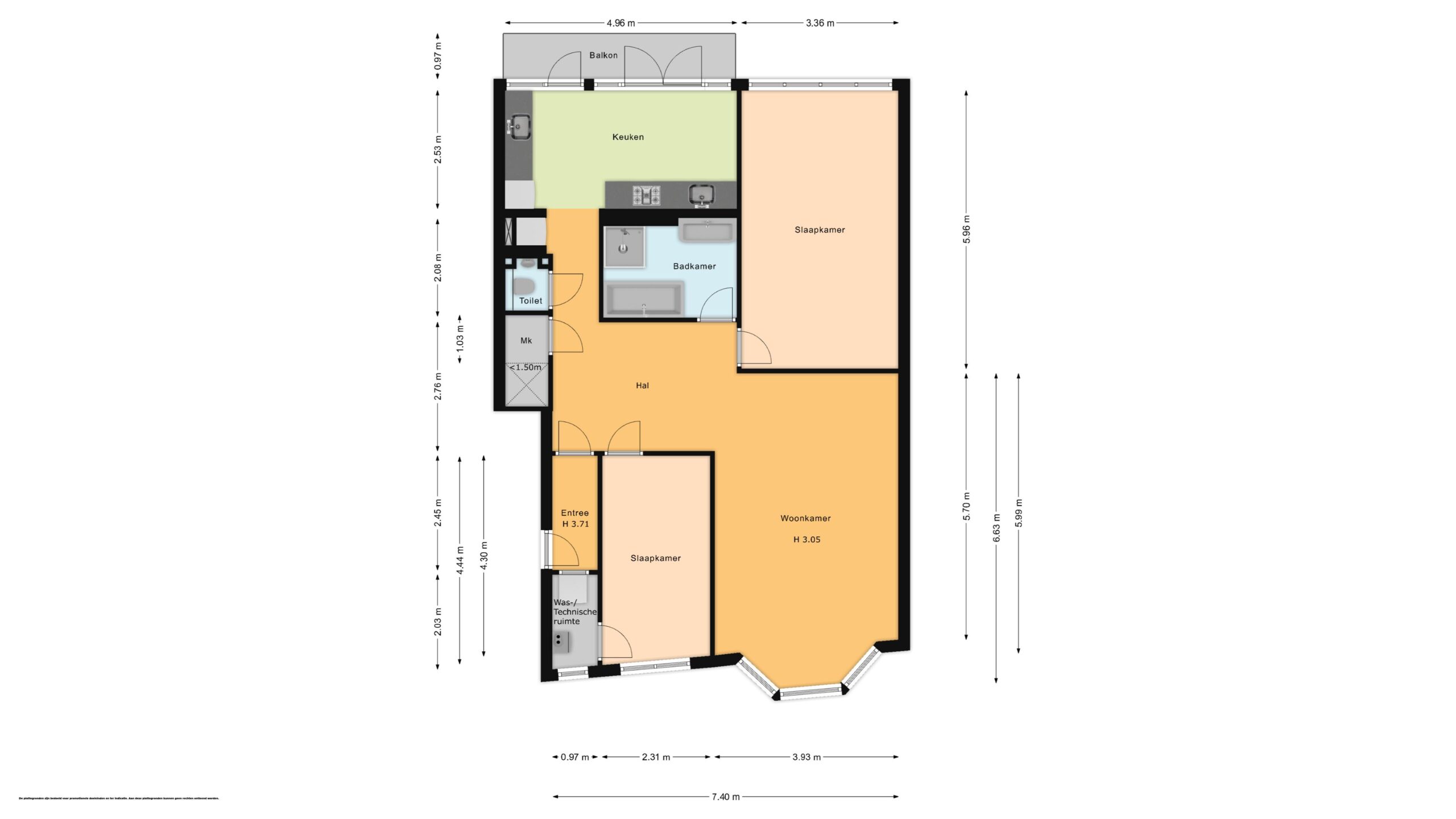
| Woonoppervlakte m2: | 97 |
| Verdieping: | 1e |
| Aantal kamers: | 5 |
| Aantal slaapkamers: | 2 |
| Aantal badkamers: | 1 |
| Bouwjaar: | 1911 |
| Status: | Verkocht |
Beschrijving
Royaal en verzorgd appartement op de 1e verdieping met een lichte living en unieke erker. Geniet van een vrij uitzicht over de groene kade met waterpartij, een moderne woonkeuken, luxe badkamer en twee ruime slaapkamers.Voor deze woning een woonoppervlak van ca. 98m2.
Eigen grond. Energielabel B door de aanwezigheid van 7 zonnepanelen.
De ligging is ideaal: in een rustige straat van het geliefde Valkenboskwartier. Binnen enkele minuten loopt u naar de gezellige Weimarstraat en Fahrenheitstraat, waar u een breed aanbod aan winkels, speciaalzaken en horecagelegenheden vindt.
Het openbaar vervoer ligt letterlijk om de hoek, met snelle verbindingen naar het bruisende centrum van Den Haag en Den Haag Centraal. Voor liefhebbers van natuur en ontspanning zijn de boulevard, duinen, het strand en de zee van Scheveningen binnen circa 15 minuten bereikbaar, zowel met de fiets als het OV.
Indeling:
Via een open portiek bereikt u de entree van het appartement. De hal met lichte verhoging (4 treden) leidt naar een centrale, ruime ontvangsthal met vaste kast inclusief meterkast (8 groepen) en een modern toilet met handige nis, smaakvolle waskom met inbouwkraan, hangcloset en inbouwreservoir.
De prettige living valt direct op door de grote erker, die zorgt voor veel lichtinval en een prachtig uitzicht over de groene strook en de waterpartij. Aan de voorzijde bevindt zich een fijne slaapkamer met toegang tot een aparte wasruimte, waar plaats is voor de wasmachine en de cv-ketel (Intergas 2017). De ruime masterbedroom ligt aan de achterzijde van de woning.
De badkamer is compleet en verzorgd, voorzien van een ligbad, inloopdouche met regen- en handdouche, inbouwkranen, een breed wasmeubel met dubbele kraan en een handdoekenradiator.
Aan de achterzijde van de woning bevindt zich de riante woonkeuken, ontstaan door het samenvoegen van een voormalige slaapkamer. Deze keuken is uitgevoerd in twee rechte opstellingen met veel kastruimte en werkblad. Uiteraard is er volop inbouwapparatuur aanwezig: een 5-pits gaskookplaat, afzuigkap (recirculatie), oven, magnetron, vaatwasser en koel-/vriescombinatie. Vanuit de keuken is er toegang tot het balkon.
Kenmerkend voor dit appartement zijn de royale indeling en de rustige ligging, met alle voorzieningen binnen handbereik.
Bijzonderheden:
- Eigen grond
- BSG Valkenboskwartier
- Energielabel B met 7 zonnepanelen
- VvE is actief met een bijdrage van ca. € 200,- per maand
- Collectieve opstalverzekering
- VvE is ingeschreven bij KvK
- 1/6e aandeel (Valkenboskade 133 tot en met 143)
- Reserve per 31-12-2024 ca. € 17.038,-
- Lening VvE per 31-12-2024, looptijd 10 jaar, restant € 19.099,-
- MJOP aanwezig
- Onderhoud voorgevel in 2024 gedaan
- Achtergevel volgt
- Keuken vernieuwd in 2021
- Badkamer vernieuwd in 2021
- Appartement is voorzien van kunststof kozijnen met HR++ glas
- Woning is voorzien van houten vloer
- Verwarming via cv-ketel
- Warmwatervoorziening via cv-ketel
- Verkoopvoorwaarden Arnold Taal Makelaardij van toepassing
- Oplevering in overleg.
Interesse in dit huis? Schakel direct uw eigen aankoopmakelaar in. Uw aankoopmakelaar komt op voor uw belang en bespaart u tijd, geld en zorgen. Bij ons zijn alle aankoopmakelaars welkom om uw belangen te behartigen. Adressen van collega aankoopmakelaars in Haaglanden kunt u bij ons opvragen.
Uw eigen woning nog niet verkocht? Doe de vrijblijvende verkoopcheck op onze kantoorpagina of bel kantoor voor een persoonlijk verkoopadvies waarin wij de mogelijkheden kunnen bespreken.
Ondanks de zorg die door ons aan de correcte invoer van de gegevens besteed wordt, kunnen wij niet verantwoordelijk gehouden en/of aansprakelijk gesteld worden voor eventuele fouten, omissies en/of onvolkomenheden in de gegevens.









































