Direct contact? Bel 070 – 707 12 40 | uitgeroepen tot beste makelaar van Zuid-Holland

Rozenstraat 9

Vraagprijs: € 350.000 k.k.

Arnold Taal

Kenmerken

Adres:Rozenstraat 9
2282 PE Rijswijk
Wijk:
Woonoppervlakte m2: 139
Verdieping: 1e en 2e
Aantal kamers: 5
Aantal slaapkamers: 4
Aantal badkamers: 2
Bouwjaar: 1925
Status:Verkocht onder voorbehoud

Beschrijving

Welkom bij deze unieke bovenwoning met twee woonlagen en een spraakmakend gevelbeeld, gekenmerkt door de halfronde erker. De woning beschikt over een riante woonkamer en een eenvoudige maar verzorgde keuken. Daarnaast zijn er twee nette badkamers. Dankzij de slimme indeling zijn er vier ruime slaapkamers, twee balkons, een praktische wasruimte en volop bergruimte.
Voor deze woning een woonoppervlak van ca. 139m2.
Eigen grond. Energielabel E.
De ligging is ideaal: met een schuin oog kijk je uit op park Hofrust. Op loopafstand ligt het gezellige centrum van Oud-Rijswijk, met een ruime keuze aan restaurants en winkels in de Willemstraat en Herenstraat. Ook het openbaar vervoer is dichtbij, met uitstekende verbindingen richting het bruisende centrum van Den Haag en Station Den Haag Centraal. Met de auto zit je bovendien binnen enkele minuten op de A4, A12 en A13.

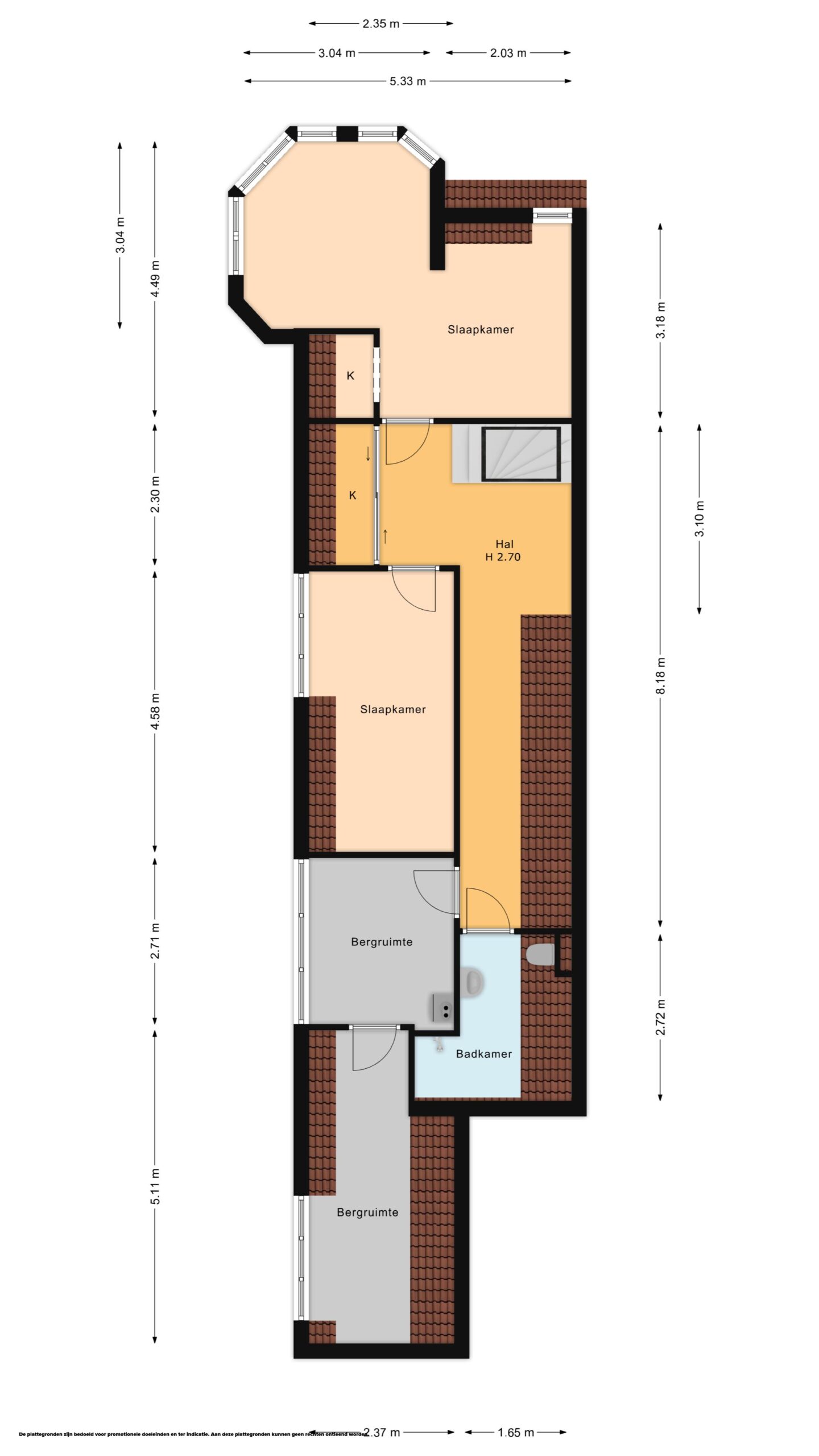
Indeling:
Vanaf straatniveau entree tot het appartement met meterkast (6 groepen) en een binnentrap naar de eerste verdieping.

Eerste verdieping: Vanaf de overloop stap je de verrassend lichte woonkamer in, mede dankzij de halfronde erker met fraai uitzicht. Via openslaande deuren is er toegang tot het balkon.
Via de hal bereik je de volledig betegelde badkamer, voorzien van douchegelegenheid, vaste wastafel en handdoekenradiator. Separaat bevindt zich het keurige, volledig betegelde toilet met fonteintje.
De volledig betegelde keuken beschikt over een rechte opstelling met onder andere een 4-pits gaskookplaat, afzuigkap, koelkast met vrieslade en vaatwasser. Tevens is hier de opstelplaats voor de wasmachine.
Aan de achterzijde bevindt zich een slaapkamer met vaste kast en doorgang naar de achterliggende slaapkamer, eveneens met vaste kast en openslaande deuren naar het balkon.

Tweede verdieping: Centrale overloop met veel lichtinval dankzij de grote lichtkoepel en praktische kastruimte. Unieke masterbedroom met opnieuw een halfronde erker en vaste kast. Daarnaast een royale slaapkamer met dakkapel.
Verder een wasruimte/berging met dakkapel en opstelplaats voor de cv-ketel (Nefit, 2017). Aangrenzend bevindt zich een handige extra berging.
De tweede badkamer is voorzien van douchegelegenheid, vaste wastafel, handdoekenradiator en een tweede toilet.

Kenmerkend voor dit appartement zijn de rustige, centrale ligging en de royale opzet met maar liefst vier slaapkamers en twee badkamers.

Bijzonderheden:
- Eigen grond
- VvE is actief met een bijdrage van ca. € 75 per maand
- Individuele opstalverzekering
- VvE is ingeschreven bij KvK
- 1/2e aandeel
- VvE bestaat uit 2 leden (Rozenstraat 7 en 9 te Rijswijk)
- Reserve per 28-12-2025 is ca. € 12.137,-
- MJOP aanwezig
- Dakisolatie in 1992 aangebracht plat dak
- Appartement is voorzien van houten kozijnen met dubbel glas
- Appartement is grotendeels voorzien van vloerbedekking
- Energielabel E
- Verwarming via cv-ketel
- Warmwatervoorziening via cv-ketel
- Verkoopvoorwaarden Arnold Taal Makelaardij van toepassing
- Oplevering in overleg, kan snel.

Interesse in dit huis? Schakel direct uw eigen aankoopmakelaar in. Uw aankoopmakelaar komt op voor uw belang en bespaart u tijd, geld en zorgen. Bij ons zijn alle aankoopmakelaars welkom om uw belangen te behartigen. Adressen van collega aankoopmakelaars in Haaglanden kunt u bij ons opvragen.

Uw eigen woning nog niet verkocht? Doe de vrijblijvende verkoopcheck op onze kantoorpagina of bel kantoor voor een persoonlijk verkoopadvies waarin wij de mogelijkheden kunnen bespreken.

Ondanks de zorg die door ons aan de correcte invoer van de gegevens besteed wordt, kunnen wij niet verantwoordelijk gehouden en/of aansprakelijk gesteld worden voor eventuele fouten, omissies en/of onvolkomenheden in de gegevens.

Video

Locatie