Direct contact? Bel 070 – 707 12 40 | uitgeroepen tot beste makelaar van Zuid-Holland

Mient 112

Vraagprijs: € 750.000 k.k.

Arnold Taal

Kenmerken

Adres:Mient 112
2564 KR Den Haag
Wijk:Heesterbuurt
Woonoppervlakte m2: 160
Verdieping: begane grond en souterrain
Aantal kamers: 7
Aantal slaapkamers: 4
Aantal badkamers: 1
Bouwjaar: 1926
Status:Te koop

Beschrijving

PAREL aan de Mient – Unieke gasloze parterrewoning met royaal souterrain en luxe afwerking.
Prettig wonen begint hier! Deze bijzondere woning combineert ruimte, licht en luxe op een manier die direct een wow-gevoel oproept. Dankzij de ingrijpende verbouwing in 2023 is een woning ontstaan waar luxe en functionaliteit perfect samenkomen.
De uitbouw maakt de woning heerlijk licht. De imposante harmonica-schuifpui, het fraaie stucwerk met ornamenten en de pvc-visgraatvloer geven het geheel een luxe uitstraling. De elegante schuifseparatie met fraaie panelen zorgt daarbij voor een subtiele scheiding tussen wonen en koken.
De tuingerichte woonkeuken met eetkamer vormt het hart van het huis en is een absolute eyecatcher. Het kookeiland met ontbijtbar nodigt uit tot uitgebreid koken en gezellig samenzijn met familie en vrienden.
Via de fraaie achterpui stap je zo de prachtig aangelegde achtertuin in met houten overkapping en berging. Een heerlijke plek om lange zomerse avonden door te brengen.
De woning biedt totaal vier slaapkamers, waaronder een kamer aan de voorzijde die momenteel als werkkamer is ingericht, ideaal als extra slaapkamer.
Via het statige trappenhuis bereik je het royale souterrain, waar zich nog eens drie volwaardige slaapkamers bevinden.
De badkamer straalt pure luxe uit en is uitgevoerd met een unieke moswand, een royaal ligbad, een riante inloopdouche, een breed wasmeubel en elegante inbouwkranen.
Daarnaast is de woning volledig voorbereid op comfortabel en duurzaam wonen. De warmtepomp met buitenunit zorgt voor vloerverwarming door de gehele woning en draagt bij aan een aangenaam binnenklimaat en lage energielasten.
Voor dit object een woonoppervlak van ca. 160m2.
Eigen grond. Energielabel A+++.
De ligging is ideaal: aan de voorzijde geniet je van vrij uitzicht en op loopafstand vind je een uitgebreid winkelaanbod aan de Weimarstraat en Fahrenheitstraat, evenals de Vlierboomstraat en Appelstraat. Openbaar vervoer ligt letterlijk om de hoek met snelle verbindingen naar het centrum van Den Haag en Centraal Station. En ook de kust is dichtbij: boulevard, duinen en strand van Scheveningen bereik je binnen circa 15 minuten per fiets of met het openbaar vervoer.

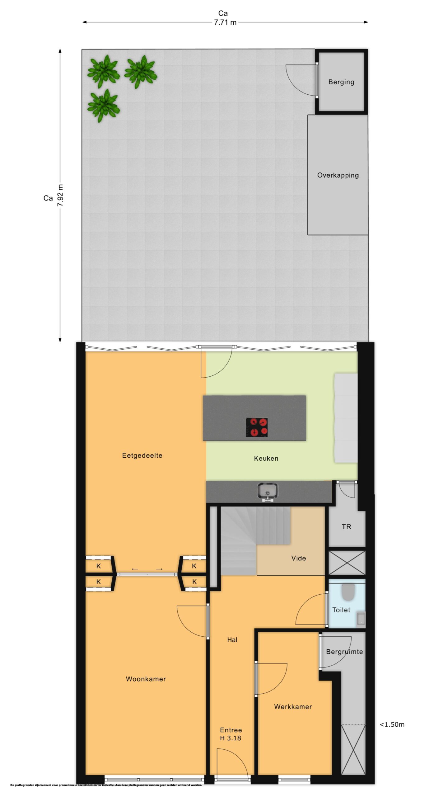
Indeling:
Bij binnenkomst in de hal ervaar je direct een echt wow-moment dankzij de hoogwaardige wand- en vloerafwerking en het imposante trappenhuis. In de hal bevindt zich tevens het moderne toilet, uitgevoerd met een hangcloset, inbouwreservoir en een wasmeubel met compacte waskom.
Aan de voorzijde ligt een slaapkamer die momenteel in gebruik is als werkkamer. Deze kamer beschikt over een vaste kast met daarin de meterkast (16 groepen). Ook aan de voorzijde bevindt zich de knusse living, voorzien van een spectaculair strak plafond met ornamenten en inbouwspots.
De stijlvolle schuifseparatie geeft toegang tot de woonkeuken met grote eettafel, een heerlijke plek voor lange, gezellige avonden. Absolute eyecatcher is de royale woonkeuken met kookeiland, strakke kastenwand en extra werkblad: een ruimte waar koken en samenzijn moeiteloos samenkomen. Het kookeiland is aan beide zijden voorzien van kastruimte en uitgerust met de populaire BORA-inductiekookplaat met geïntegreerde afzuiging. Het spoelgedeelte biedt eveneens veel bergruimte en is voorzien van een Quooker en een vaatwasser. De strakke kastenwand beschikt over hoogwaardige inbouwapparatuur, waaronder een Siemens oven, warmhoudlade, magnetron, een grote koelkast en een separate grote vriezer. In een netjes weggewerkte kast bevindt zich het buffervat (100 liter).
Via de imposante harmonica-schuifpui met loopdeur vormt de tuin werkelijk een verlengstuk van de woning. Onder de houten overkapping is het heerlijk genieten; daarnaast is er een berging. Ook de buitenunit (Vaillant, 2023) is hier opgesteld.

Souterrain: Via het imposante trappenhuis met moswand bereik je het royale souterrain. De hal biedt toegang tot diverse praktische ruimtes, waaronder een technische ruimte met de binnenunit van de warmtepomp (Vaillant) met een buffervat (190 liter), een wasruimte met opstelplaats voor een was-/droogcombinatie en een modern toilet met hangcloset en een compact meubel. Voor de afvoer van het toilet, de badkamer en de wasruimte is een speciale pompinstallatie aanwezig.
Aan de achterzijde bevindt zich een ruime masterbedroom met daglicht via een koekoek. Daarnaast ligt er nog een tweede royale slaapkamer aan de achterzijde, eveneens met koekoek, momenteel in gebruik als gym.
De badkamer straalt pure luxe uit en is uitgevoerd met een unieke moswand, een royaal ligbad, een riante inloopdouche, een breed wasmeubel en elegante inbouwkranen.
Aan de voorzijde is nog een slaapkamer aanwezig met bijzonder fraaie lichtinval dankzij het beloopbare glas in de vloer van de living.

De combinatie van luxe afwerking, royale ruimtes, aangename lichtinval en vier slaapkamers maakt dit instapklare object tot een bijzonder comfortabel en compleet thuis, met een stijlvolle living, een prachtige woonkeuken en een luxe badkamer.

Bijzonderheden:
- Eigen grond
- VvE is actief met een bijdrage van € 100,- per maand
- Collectieve opstalverzekering
- VvE is ingeschreven bij KvK
- 1/6e aandeel
- VvE bestaat uit 6 leden (Mient 112 t/m 122)
- Reserve per 31-12-2024 ca. € 3.727,-
- MJOP aanwezig
- Appartement is gasloos en voorzien van duurzame warmtepomp
- Appartement is voorzien van comfortabele vloerverwarming
- Appartement is voorzien van houten kozijnen met HR+++
- Appartement is voorzien van fraaie pvc-vloer in visgraat
- Energielabel A+++
- Verwarming via warmtepomp (binnenunit met buffervat 190 liter)
- Warmwatervoorziening via buffervat in keuken (100 liter)
- Verkoopvoorwaarden Arnold Taal Makelaardij van toepassing
- Oplevering in overleg, kan snel.

Interesse in dit huis? Schakel direct uw eigen aankoopmakelaar in. Uw aankoopmakelaar komt op voor uw belang en bespaart u tijd, geld en zorgen. Bij ons zijn alle aankoopmakelaars welkom om uw belangen te behartigen. Adressen van collega aankoopmakelaars in Haaglanden kunt u bij ons opvragen.

Uw eigen woning nog niet verkocht? Doe de vrijblijvende verkoopcheck op onze kantoorpagina of bel kantoor voor een persoonlijk verkoopadvies waarin wij de mogelijkheden kunnen bespreken.

Ondanks de zorg die door ons aan de correcte invoer van de gegevens besteed wordt, kunnen wij niet verantwoordelijk gehouden en/of aansprakelijk gesteld worden voor eventuele fouten, omissies en/of onvolkomenheden in de gegevens.

Video

Locatie