Direct contact? Bel 070 – 707 12 40 | uitgeroepen tot beste makelaar van Zuid-Holland

Fultonstraat 75

Vraagprijs: € 350.000 k.k.

Arnold Taal

Kenmerken

Adres:Fultonstraat 75
2562 XC Den Haag
Wijk:Valkenboskwartier
Woonoppervlakte m2: 78
Verdieping: 2e
Aantal kamers: 4
Aantal slaapkamers: 2
Aantal badkamers: 1
Bouwjaar: 1912
Status:Te koop

Beschrijving

Welkom in deze charmante bovenwoning op de tweede verdieping. De woning beschikt over een royale en lichte living, een eenvoudige maar nette keuken en een verzorgde badkamer. Daarnaast zijn er twee comfortabele slaapkamers, ideaal voor zowel een stel, klein gezin als thuiswerkers. Een bijzonder pluspunt zijn de maar liefst drie balkons, waardoor u op elk moment van de dag kunt genieten van buitenruimte en daglicht.
Voor deze woning een woonoppervlak van ca. 78m2.
Eigen grond. Energielabel D.
De woning is ideaal gelegen in het rustige en geliefde Valkenboskwartier. Op loopafstand bevinden zich de Weimarstraat en de Fahrenheitstraat, waar u een gevarieerd aanbod aan winkels, speciaalzaken en horecagelegenheden vindt. Openbaar vervoer is om de hoek aanwezig en biedt een uitstekende verbinding naar het bruisende centrum van Den Haag en het Centraal Station. Daarnaast zijn de boulevard, de duinen en het strand van Scheveningen binnen circa 15 fietsminuten bereikbaar.

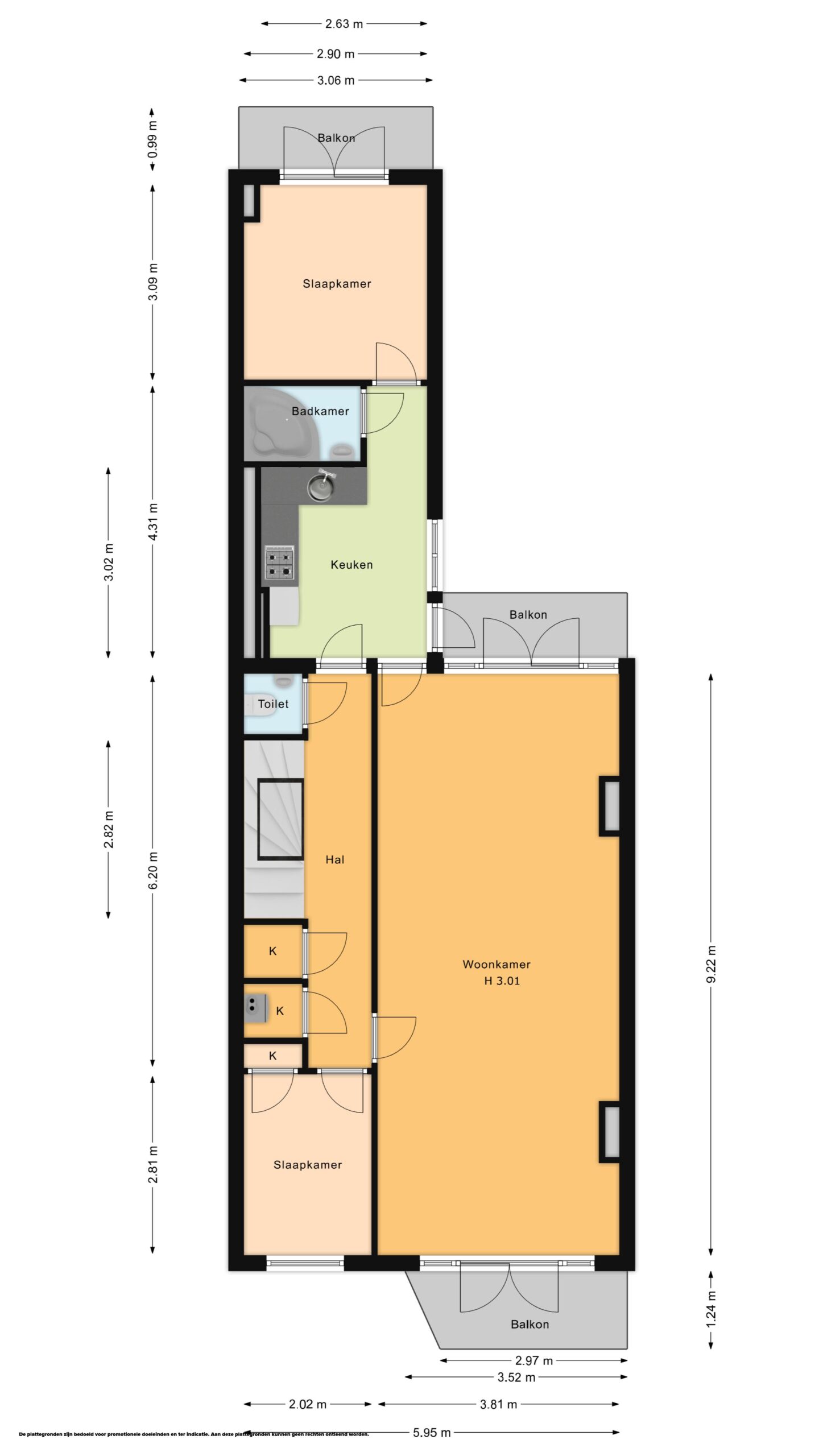
Indeling:
Via het fraaie, karakteristieke Haagse portiek bereikt u de entree van het appartement op de eerste verdieping. Hier bevindt zich de meterkast (5 groepen) en de binnentrap die toegang biedt tot de tweede verdieping, waar de woning is gelegen.

Tweede verdieping:
Vanaf de overloop met grote lichtkoepel betreedt u de verrassend lichte woonkamer. Dankzij de royale glasoppervlakken aan zowel de voor- als achterzijde geniet de ruimte van een prettige hoeveelheid daglicht. Een sfeervol detail is het recent geplaatste glas-in-lood, dat de woonkamer extra karakter geeft. Via openslaande deuren is er toegang tot een fijn balkon met een leuk straatbeeld en een gunstige zonligging op het zuidoosten.
Aan de voorzijde van het appartement bevindt zich een slaapkamer, voorzien van een vaste kast. Op de overloop treft u daarnaast twee praktische vaste kasten, waarvan één met bergruimte en een opstelplaats voor de cv-ketel (Remeha, 2015). Tevens is hier de aansluiting voor de wasmachine gesitueerd. Het toilet beschikt over een fonteintje.
De eenvoudige doch verzorgde keuken in hoekopstelling is uitgerust met veel kastruimte, een gaskookplaat en afzuigkap. Vanuit de keuken is er toegang tot een tweede balkon.
De badkamer is voorzien van een ligbad-/douchecombinatie, een vaste wastafel en een handdoekenradiator. Aan de achterzijde van de woning bevindt zich de ruime masterbedroom met openslaande deuren naar het balkon, waar u kunt genieten van de middag- en avondzon.

Kenmerkend voor dit appartement zijn de rustige, centrale ligging en de royale opzet met maar liefst drie balkons en twee slaapkamers.

Bijzonderheden:
- Eigen grond
- VvE is actief met een bijdrage van ca. € 100 per maand
- Collectieve opstalverzekering
- VvE is ingeschreven bij KvK
- 1/3e aandeel
- VvE bestaat uit 3 leden (Fultonstraat 71/73/75 te Den Haag)
- Reserve per 31-12-2025 is ca. € 8.311,-
- BSG Valkenboskwartier
- Dakisolatie aangebracht op kosten verkoper
- Balkonhek masterbedroom is vernieuwd
- Appartement is nagenoeg voorzien van houten/kunststof kozijnen met dubbel glas
- Appartement is grotendeels voorzien van een massieve vloer
- Energielabel D
- Verwarming via cv-ketel
- Warmwatervoorziening via cv-ketel
- Verkoopvoorwaarden Arnold Taal Makelaardij van toepassing
- Oplevering in overleg, kan snel.

Interesse in dit huis? Schakel direct uw eigen aankoopmakelaar in. Uw aankoopmakelaar komt op voor uw belang en bespaart u tijd, geld en zorgen. Bij ons zijn alle aankoopmakelaars welkom om uw belangen te behartigen. Adressen van collega aankoopmakelaars in Haaglanden kunt u bij ons opvragen.

Uw eigen woning nog niet verkocht? Doe de vrijblijvende verkoopcheck op onze kantoorpagina of bel kantoor voor een persoonlijk verkoopadvies waarin wij de mogelijkheden kunnen bespreken.

Ondanks de zorg die door ons aan de correcte invoer van de gegevens besteed wordt, kunnen wij niet verantwoordelijk gehouden en/of aansprakelijk gesteld worden voor eventuele fouten, omissies en/of onvolkomenheden in de gegevens.

Video

Locatie