Direct contact? Bel 070 – 707 12 40 | uitgeroepen tot beste makelaar van Zuid-Holland

Forellendaal 242

Vraagprijs: € 250.000 k.k.

Arnold Taal

Kenmerken

Adres:Forellendaal 242
2553 LK Den Haag
Wijk:Kraaijenstein
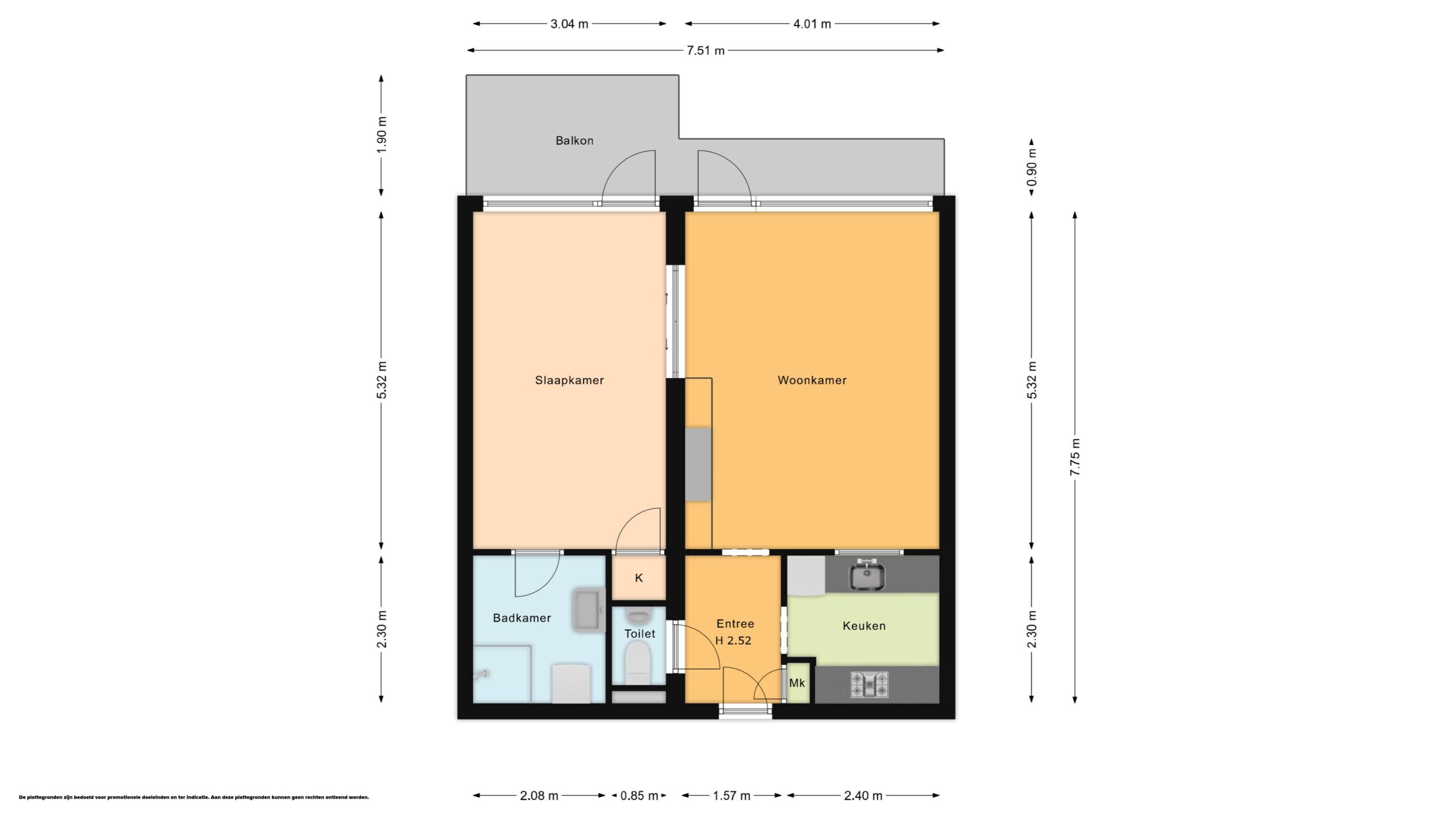
Woonoppervlakte m2: 57
Verdieping: 15e
Aantal kamers: 2
Aantal slaapkamers: 1
Aantal badkamers: 1
Bouwjaar: 1975
Status:Te koop

Beschrijving

Geniet dagelijks van een schitterend vrij uitzicht en volop zon op het royale balkon, gunstig gelegen op het zuidoosten. Dit fraai afgewerkte appartement bevindt zich op de 15e verdieping en biedt een moderne, comfortabele woonomgeving met een doordachte indeling.
De woning is strak afgewerkt en voorzien van onder andere een stijlvolle cinewall, strakke plafonds en een moderne vloer. De U-vormige keuken met inbouwapparatuur vormt het hart van het appartement en biedt volop werk- en bergruimte. Zowel het moderne toilet als de eigentijdse badkamer zijn smaakvol uitgevoerd.
Het ruime balkon nodigt uit om heerlijk buiten te zitten, met veel zon en een weids uitzicht. Verder beschikt het appartement over een eigen berging, parkeergelegenheid op het afgesloten gezamenlijke terrein (slagboom) en een gemeenschappelijke fietsenstalling.
Voor dit object een woonoppervlak van ca. 57m2.
Eigen grond. Energielabel E.
Gelegen aan de rand van Den Haag met veel groen, uitvalswegen, winkels en openbaar vervoer op loopafstand zit u heerlijk centraal en toch in alle rust!
Ideale ligging t.o.v. winkelgebied Kraayenstein maar ook het centrum van Loosduinen met op woensdag de markt op het Loosduinse Hoofdplein. Verder een goede verbinding met openbaar vervoer richting het bruisende centrum van Den Haag en Centraal Station.
De boulevard, duinen en het strand van Kijkduin liggen op circa 10 minuten fietsen. Hier vindt u gezellige horeca, een breed strand en de Zandmotor, met watersportmogelijkheden zoals kitesurfen en wingfoilen.

Indeling:
Via de verzorgde en afgesloten entree met camerabewaking, brieven- en bellentableau, liften en een huismeester kom je comfortabel en veilig binnen. Op de 15e verdieping bereik je via de corridor de voordeur van het appartement.

De ruime hal biedt plek voor een garderobe en geeft toegang tot de moderne, volbetegelde toiletruimte met fonteintje. Ook vind je hier de meterkast met 6 groepen. De afwerking is strak en eigentijds.
De moderne U-keuken is van alle gemakken voorzien en ideaal voor de kookliefhebber: een 5-pits gaskookplaat, afzuigkap (recirculatie), magnetron en een koelkast met vrieslade.
Zowel de hal als de woonkamer zijn afgewerkt met een strak spanplafond met inbouwspots en een moderne pvc-vloer. De sfeervolle cinewall met sierhaard vormt een echte eyecatcher. Vanuit de woon-/eetkamer heb je directe toegang tot het royale balkon, dat zich uitstrekt over de volledige breedte van het appartement. Dankzij de gunstige zonligging is dit de perfecte plek om na een werkdag te ontspannen en te genieten van het vrije uitzicht richting Kijkduin.
Via een praktische schuifdeur bereik je de ruime slaapkamer met vaste kast. Ook vanuit de slaapkamer is er toegang tot het balkon.
De moderne, volbetegelde badkamer is eveneens voorzien van een spanplafond met spots en beschikt over een douchecabine, breed wastafelmeubel, een opstelplaats voor de wasmachine en de 80-liter boiler (huur).
Op de begane grond bevindt zich de eigen berging en is er een gemeenschappelijke fietsenstalling.

Kenmerkend voor dit object is de rustige en centrale ligging, lichtinval, vrije uitzicht, creatieve indeling en eigen berging.

Bijzonderheden:
- Eigen grond
- VvE is actief met een bijdrage van € 214,62 per maand
- Voorschot stookkosten € 60,- per maand
- Alleen kookgas aanwezig
- Collectieve opstalverzekering
- VvE is ingeschreven bij KvK
- VvE bestaat uit 128 leden (Forellendaal 24 tot en met 278 even nummers, Forellendaal 2 en Forellendaal 12)
- 1/140e aandeel
- Reserve per 20-12-2025 is ca. € 202.015,-
- Mogelijkheid om te parkeren op gezamenlijk parkeerterrein via slagboom
- Gemeenschappelijke fietsenstalling
- Spanplafonds, vloer en cinewall zijn aangebracht in 2021
- Appartement is voorzien van pvc-vloer
- Appartement is voorzien van houten kozijnen met enkel glas
- Energielabel E
- Verwarming via blokverwarming
- Warmwatervoorziening via elektrische boiler
- Verkoopvoorwaarden Arnold Taal Makelaardij van toepassing
- Oplevering in overleg.

Interesse in dit huis? Schakel direct uw eigen aankoopmakelaar in. Uw aankoopmakelaar komt op voor uw belang en bespaart u tijd, geld en zorgen. Bij ons zijn alle aankoopmakelaars welkom om uw belangen te behartigen. Adressen van collega aankoopmakelaars in Haaglanden kunt u bij ons opvragen.

Uw eigen woning nog niet verkocht? Doe de vrijblijvende verkoopcheck op onze kantoorpagina of bel kantoor voor een persoonlijk verkoopadvies waarin wij de mogelijkheden kunnen bespreken.

Ondanks de zorg die door ons aan de correcte invoer van de gegevens besteed wordt, kunnen wij niet verantwoordelijk gehouden en/of aansprakelijk gesteld worden voor eventuele fouten, omissies en/of onvolkomenheden in de gegevens.

Video

Locatie