Direct contact? Bel 070 – 707 12 40 | uitgeroepen tot beste makelaar van Zuid-Holland

Archimedesstraat 38

Vraagprijs: € 985.000 k.k.

Arnold Taal

Kenmerken

Adres:Archimedesstraat 38
2517 RW Den Haag
Wijk:Duinoord
Woonoppervlakte m2: 219
Verdieping: 1e, 2e en 3e
Aantal kamers: 8
Aantal slaapkamers: 6
Aantal badkamers: 2
Bouwjaar: 1904
Status:Te koop

Beschrijving

In het geliefde en statige Duinoord bevindt zich deze smaakvol gerenoveerde (2018) en royale bovenwoning, waar authentieke details en modern wooncomfort perfect samenkomen. De woning ademt karakter dankzij de hoge plafonds, stijlvolle paneeldeuren en een warme, uitnodigende sfeer die al bij binnenkomst voelbaar is.
De ruime woonkamer is bijzonder licht en heeft een plafondhoogte van circa 3 meter, wat zorgt voor een indrukwekkend ruimtelijk gevoel. De woonkamer is afgewerkt met een warme parketvloer en beschikt over een serrekamer, ideaal om je even terug te trekken met een boek of als extra werk- of zithoek. De halfopen keuken is modern uitgevoerd en voorzien van alle gemakken. Verder beschikt de woning over vier ruime slaapkamers en twee werkkamers, perfect voor thuiswerken, gasten of hobby’s. Met twee complete en moderne badkamers is er bovendien volop comfort en gemak voor het hele gezin.
Een bijzonder pluspunt is de aanwezigheid van buitenruimte op elke verdieping, waardoor je op elk moment van de dag kunt genieten van zon, rust en privacy.
Voor deze woning een woonoppervlak van ca. 219m2.
Eigen grond. Energielabel D.
Ideaal is de rustige ligging op loopafstand van de gezellige Reinkenstraat met haar diverse winkels en gezellige koffie- en lunchzaken. Ook de Frederik Hendriklaan (De Fred) ligt in de buurt en biedt een ruime keuze aan restaurants, terrassen en een grote diversiteit aan winkels.
Het openbaar vervoer bevindt zich om de hoek, waardoor je in korte tijd in het centrum van Den Haag bent. Daarnaast zijn de boulevard, het strand en de zee van Scheveningen op slechts 15 minuten fietsen gelegen, ideaal voor een ochtendwandeling of een zomerse stranddag.

Indeling:
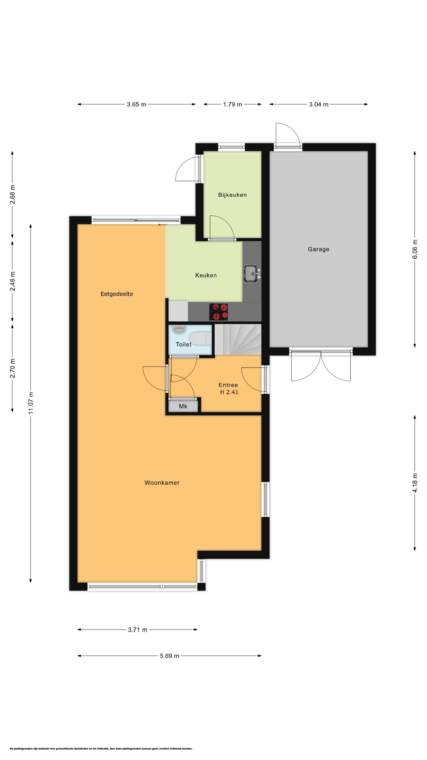
Via de eigen entree op straatniveau komt u binnen in de hal, waar zich de meterkast (voorzien van 12 groepen) bevindt, evenals de trapopgang naar de eerste verdieping.

Eerste verdieping:
Al bij aankomst op de overloop valt direct het uitmuntende afwerkingsniveau op: strak stucwerk, luxe dubbele binnendeuren en een prachtige parketvloer. Op deze verdieping bevindt zich tevens een separaat, modern toilet, uitgevoerd met een hangcloset, inbouwreservoir en een compact wasmeubel.
De riante living is sfeervol ingedeeld en bestaat uit een zit- en eetkamer, aangevuld met een fijne serrekamer waar u heerlijk kunt ontspannen.
Aan de achterzijde bevindt zich de smaakvolle keuken, voorzien van onder andere een fraai 6-pits Boretti gasfornuis, afzuigkap, vaatwasser, veel kastruimte en een Amerikaanse koel-/vriescombinatie. Vanuit de keuken is er toegang tot een balkon.
Aan de voorzijde van de woning ligt een slaap-/werkkamer met praktische kastruimte en garderobe.

Tweede verdieping:
Op de overloop bevindt zich een vaste kast met de opstelplaats voor een was-/droogcombinatie. Aan de voorzijde ligt een werk-/slaapkamer, ideaal als thuiswerkplek of logeerkamer, met praktische kastruimte. Daarnaast bevindt zich aan de voorzijde een riante slaapkamer, eveneens voorzien van fraai ingebouwde kastruimte.
Aan de achterzijde is de moderne en complete badkamer gesitueerd, uitgevoerd met een vrijstaand ligbad, inloopdouche, breed wasmeubel met dubbele kraan, handdoekenradiator en een toilet met hangcloset en inbouwreservoir.
De masterbedroom aan de achterzijde beschikt over openslaande deuren naar een ruim terras, waar u heerlijk kunt genieten van buitenruimte en privacy.

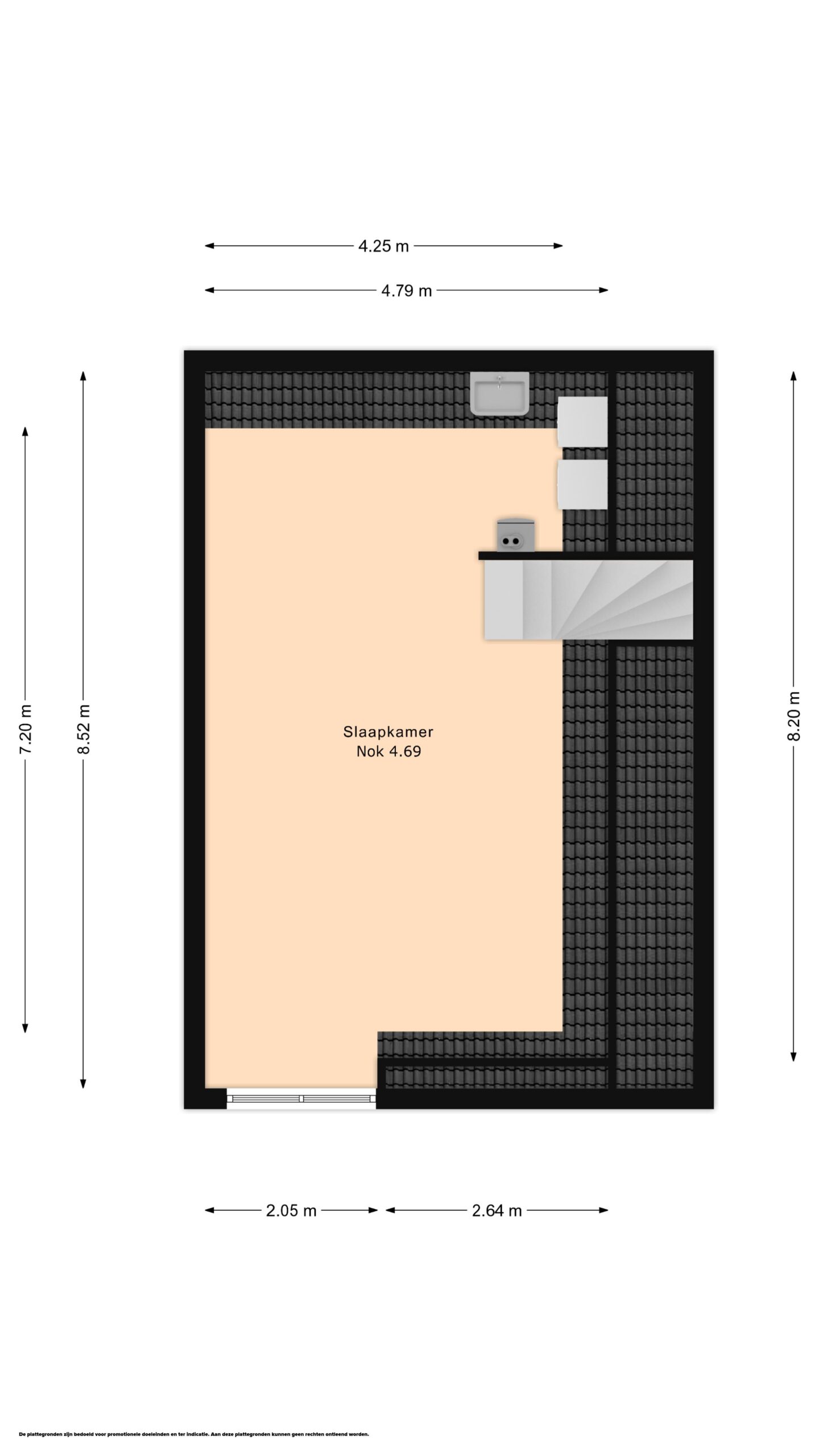
Derde verdieping:
De overloop is licht en ruim dankzij de grote lichtkoepel, die zorgt voor een prettige natuurlijke lichtinval. Praktisch zijn de inbouwkasten, met onder andere de opstelplaats voor de cv-ketel (Remeha 2016).
Via openslaande deuren is het balkon bereikbaar, waar zich tevens de buitenunit van de airconditioning bevindt.
Aan de achterzijde van de woning ligt een royale slaapkamer, voorzien van airconditioning. Daarnaast bevindt zich op deze verdieping een ruime, volledig betegelde tweede badkamer, uitgevoerd met een inloopdouche, breed wasmeubel met dubbele kraan, handdoekenradiator en een toilet met hangcloset en inbouwreservoir.
Aan de voorzijde bevindt zich een tweede royale slaapkamer, voorzien van twee dakkapellen.

Een karaktervolle bovenwoning met hedendaags comfort, royale leefruimtes, luxe keuken, twee complete badkamers en buitenruimte op iedere verdieping. Een bijzonder fijne plek voor wie rust, ruimte en voorzieningen om de hoek waardeert.

Bijzonderheden:
- Eigen grond
- Energielabel D
- BSG DUINOORD
- Index A2, appartement op de 1e verdieping, nr 38 I/38, 1/8e aandeel
- Index A3, appartement op de 2e verdieping, nr 38II/38A, 1/8e aandeel
- Index A4, appartement op de zolderverdieping, nr 38III/38B, 1/8e aandeel
- VvE is actief met een bijdrage van ca. € 423,- per maand
- Collectieve opstalverzekering
- VvE is ingeschreven bij KvK
- 3/8e aandeel
- VvE bestaat uit Archimedesstraat 38/40 en 42/44 te Den Haag
- Reserve per 31-12-2024 ca. € 24.069,-
- Appartement is aan de voorzijde voorzien van houten kozijnen met HR++ glas
- Appartement is aan de achterzijde voorzien van houten kozijnen met grotendeels HR++ glas (rest is dubbel glas)
- Appartement is voorzien van parketvloer
- Verwarming via cv-ketel
- Airco slaapkamer zolderverdieping (achterzijde)
- Warmwatervoorziening via cv-ketel
- Verkoopvoorwaarden Arnold Taal Makelaardij van toepassing
- Oplevering in overleg, kan snel.

Interesse in dit huis? Schakel direct uw eigen aankoopmakelaar in. Uw aankoopmakelaar komt op voor uw belang en bespaart u tijd, geld en zorgen. Bij ons zijn alle aankoopmakelaars welkom om uw belangen te behartigen. Adressen van collega aankoopmakelaars in Haaglanden kunt u bij ons opvragen.

Uw eigen woning nog niet verkocht? Doe de vrijblijvende verkoopcheck op onze kantoorpagina of bel kantoor voor een persoonlijk verkoopadvies waarin wij de mogelijkheden kunnen bespreken.

Ondanks de zorg die door ons aan de correcte invoer van de gegevens besteed wordt, kunnen wij niet verantwoordelijk gehouden en/of aansprakelijk gesteld worden voor eventuele fouten, omissies en/of onvolkomenheden in de gegevens.

Video

Locatie